Vente Appartement 74130, Bonneville france 300 000 €
Descriptif du bien
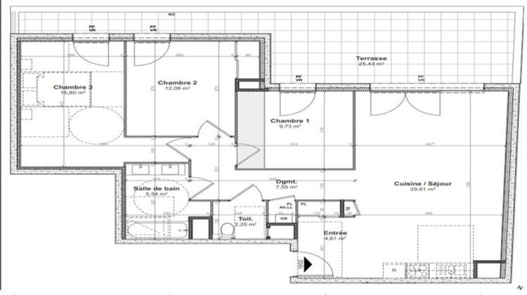
Située en plein centre-ville de Bonneville , votre résidence intimiste de 29 logements seulement,
au rez de chaussée appartement 4 pièces de 95m² ,avec hall d'entrée avec placard, séjour cuisine avec un accès sur la terrasse de 25m²,
3 chambres, salle de bains, wc, parking.
De nombreux atouts ,calme, dégagement, centralité, proximité des transports.
Pour toutes informations complémentaires, prenez contact avec
nous !
Honoraires à la charge du vendeur. Dans une copropriété de 29 lots. Aucune procédure n'est en cours. DPE vierge Nos honoraires : https://files.netty.immo/file/sellingimmo/honoraires Les informations sur les risques auxquels ce bien est exposé sont disponibles sur le site Géorisques : georisques.gouv.fr
- Type de bien : Appartement
- Surface : 95 m²
- Localisation : France - Auvergne-Rhône-Alpes - Savoie (Haute)
- Ville : Bonneville
- Code postal : 74130
- Disponible le 14/05/2021
- Annonce créée le 12/12/2023


