Vente Appartement 94380, Bonneuil-sur-Marne france 185 000 €
Descriptif du bien
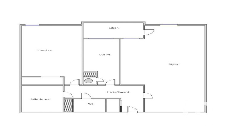
Iad France - Lisa Amghar vous propose : T2 meublé de 49 m² avec balcon et parking - Investissement clé en main.
Venez découvrir ce charmant T2,49 m² en très bon état, parfaitement agencé, situé au 4e étage sur 5 avec ascenseur d'une résidence calme et sécurisée.
L'appartement se compose de :
un séjour lumineux ouvrant sur un balcon avec vue sur le jardin de la résidence,
une cuisine fonctionnelle,
une chambre avec rangements,
une salle de bain,
WC séparés,
et une place de parking privative en sous-sol.
Atouts:
Emplacement pratique, à proximité des commerces et des transports :
bus Bus 393, Bus 117 et Bus 104 à 3 minutes à pied,
Paris Métro Line 8 et Câble C1 à 5 minutes en bus ou 15 minutes à pied,
RER A à 10 minutes en bus.
Investissement clé en main :
Appartement vendu loué meublé, avec locataire sérieux et garanties locatives. Fin de bail : 15 / 09 / 2026.
Fin de bail :
Loyer actuel : 884,56 ¤ / mois
(794,56 ¤ + 90 ¤) de charges.
Rentabilité immédiate !
Contactez-moi dès maintenant pour organiser une visite.
La presente annonce immobiliere vise 2 lots situés dans une copropriété de 86 lots au total et ne faisant l'objet d'aucune procédure en cours citée à l'article L. 721-1 du code de la construction et de l'habitation. Montant moyen mensuel de charges déclaré par le vendeur : 114.51¤ par mois (soit 1374.12 ¤ annuel). Honoraires d'agence à la charge du vendeur.
Information d'affichage énergétique sur ce bien : classe ENERGIE D indice 219 et classe CLIMAT B indice 6. Les informations sur les risques auxquels ce bien est exposé, y compris l'obligation légale de débroussaillement, sont disponibles sur le site Géorisques : http://www.georisques.gouv.fr.
La présente annonce immobilière a été rédigée sous la responsabilité éditoriale de Mme Lisa Amghar mandataire indépendant en immobilier (sans détention de fonds), agent commercial de la SAS I@D France immatriculé au RSAC de CRETEIL sous le numéro 910924620, titulaire de la carte de démarchage immobilier pour le compte de la société I@D France SAS.Informations LOI ALUR : Soumis au régime de copropriété. Nombre de lots : 86. Quote part annuelle(moyenne) : 1374.12 euros. Honoraires charge vendeur. (gedeon_6727_32616600)
- Type de bien : Appartement
- DPE : D - 151 à 230 kWh/².an
- GES : B - 6 à 10 kg eq CO2/².an
- Surface : 49 m²
- Localisation : France - ile-de-france - Val de Marne
- Ville : Bonneuil-sur-Marne
- Code postal : 94380
- Annonce créée le 16/04/2026





