Vente Appartement 94380, Bonneuil-sur-Marne france 249 000 €
Descriptif du bien
Iad France - Fatiha El Idrissi vous propose : ___ 59 / 89 AV DE PARIS,
___ QUARTIER RECHERCHÉ DU PARC DU RANCY,
Appartement de type F4 à rafraichir SANS CHARGES offrant un potentiel incroyable idéale pour les investisseurs ou les amateurs de rénovation.
comprenant :
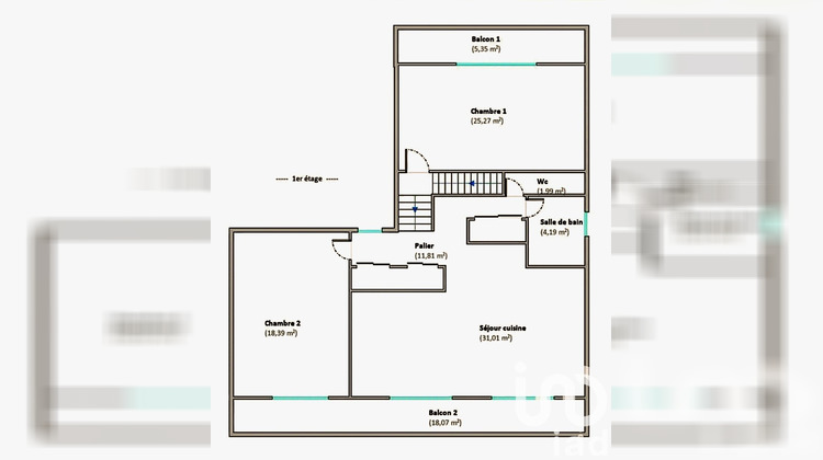
Au rez-de-chaussée : une entrée de 8 m²
A l'étage : un palier distribuant une 1ere chambre de 25 m² donnant sur balcon avec vue dégagée, une cuisine ouverte sur le séjour / salle a manger de 31 m² avec une terrasse de 18 m² SANS AUCUN VIS A VIS, une 2eme chambre de 18 m², un dégagement avec placards, une salle de bains avec fenêtre, et WC séparés.
___ PROCHE DE TOUTES COMMODITÉS, commerces, écoles, transports (métro L8 à 10min en bus ou 20min à pied).
___ PAS DE GARAGE
___ Rafraichissement à prévoir.
___ EXPOSITION EST / OUEST.
___ DOUBLE VITRAGE.
___ TAXE FONCIERE : 1800 EUROS
La presente annonce immobiliere vise 1 lot situé dans une copropriété de 2 lots au total et ne faisant l'objet d'aucune procédure en cours citée à l'article L. 721-1 du code de la construction et de l'habitation. Montant moyen mensuel de charges déclaré par le vendeur : 0¤ par mois (soit 0 ¤ annuel). Honoraires d'agence à la charge du vendeur.
Information d'affichage énergétique sur ce bien : classe ENERGIE E indice 240 et classe CLIMAT E indice 52. Les informations sur les risques auxquels ce bien est exposé, y compris l'obligation légale de débroussaillement, sont disponibles sur le site Géorisques : http://www.georisques.gouv.fr.
La présente annonce immobilière a été rédigée sous la responsabilité éditoriale de Mme Fatiha El Idrissi mandataire indépendant en immobilier (sans détention de fonds), agent commercial de la SAS I@D France immatriculé au RSAC de CRETEIL sous le numéro 410 896 633, titulaire de la carte de démarchage immobilier pour le compte de la société I@D France SAS.
Informations LOI ALUR :
Soumis au régime de copropriété.
Nombre de lots : 2.
Honoraires charge vendeur. (gedeon_6727_31804150)
- Type de bien : Appartement
- DPE : E - 231 à 330 kWh/².an
- GES : E - 36 à 55 kg eq CO2/².an
- Surface : 101 m²
- Localisation : France - ile-de-france - Val de Marne
- Ville : Bonneuil-sur-Marne
- Code postal : 94380
- Annonce créée le 26/02/2026



