Vente Appartement 14910, Blonville-sur-Mer france 107 000 €
Descriptif du bien
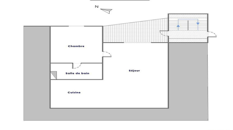
BLONVILLE SUR MER - Appartement T2 situé au 1er étage sans acsenseur, composé :
D'un salon-séjour ouvert sur la cuisine, chambre et salle de bain avec WC.
Balcon. Place de stationnement aérien.
A 600 m de la place et du centre.
Charges trimestrielles : 122.53
Nous aimons son environnement et ses possibilités.
Nombres de lots dans la copropriété : 72 dont 36 en habitation.
Honoraires inclus de 7% TTC à la charge de l'acquéreur. Prix hors honoraires 100 000 . Dans une copropriété de 72 lots. Aucune procédure n'est en cours. Classe énergie E, Classe climat B Montant estimé des dépenses annuelles d'énergie pour un usage standard : entre 740.00 et 1030.00 sur les années 2021, 2022 et 2023 (abonnements compris). Les informations sur les risques auxquels ce bien est exposé sont disponibles sur le site Géorisques : georisques.gouv.fr.





