Vente Appartement 34500, BEZIERS france 234 900 €
Descriptif du bien
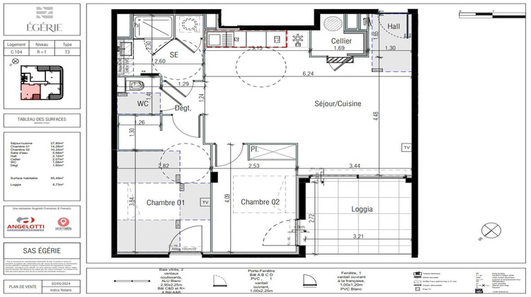
Résidence Égerie – Votre T3 lumineux au cœur du Quartier Petit Casino Idéalement située à seulement 10 minutes du centre-ville et 5 minutes des grands axes, la Résidence Égerie s’articule autour d’un îlot de verdure, avec les bureaux du promoteur Angelotti en façade. À proximité immédiate de toutes les commodités et des transports en commun, cette résidence moderne est construite selon les normes RT 2012 et PMR, avec des garanties décennale et dommage ouvrage. Elle est également éligible au dispositif PINEL ainsi qu’au Prêt à Taux Zéro. Au premier étage du bâtiment C, ce grand T3 de 65,49 m² offre un hall d’entrée, un salon-séjour avec cuisine ouverte aménagée et semi-équipée, ainsi qu’un accès à une loggia d’environ 8,73 m² exposée sud-est. Deux chambres, une salle d’eau avec douche et meuble simple vasque, un WC séparé, un cellier et un hall complètent ce logement. Deux places de parking couvert sont également incluses en sous-sol. Les menuiseries en PVC et aluminium, le double vitrage, les volets roulants électriques et le carrelage au sol témoignent de la qualité des finitions dans cette résidence sécurisée. La livraison est prévue pour le quatrième trimestre 2025.




