Vente Appartement 34500, Beziers france 249 000 €
Descriptif du bien
À vendre en VEFA, magnifique duplex de 121 m² à Béziers (la plus vieille ville de France), dans un environnement résidentiel calme, tout en étant à proximité immédiate du centre-ville.
Ce bien en copropriété de 3 lots seulement, offre des prestations haut de gamme et un confort moderne.
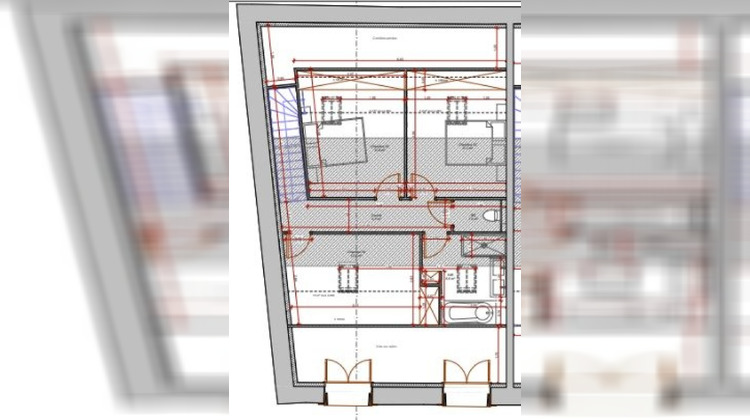
Vous apprécierez au rez-de-chaussée un vaste séjour / cuisine lumineux de 47 m² avec cellier ou arrière cuisine, une terrasse de 10 m², une suite parentale avec salle d'eau privative et dressing, un WC ;
L'étage dispose de 3 chambres avec parquet, une salle de bain et un WC séparé.
L'appartement est exposé Sud-Ouest!
L'emplacement est un véritable atout : à seulement 10 minutes à pied de nos belles Allées Paul Riquet, de nos restaurants et 15 minutes à pieds de nos nouvelles halles; élues Plus beau marché de France 2025 ;
Grâce à l'ascenseur urbain qui relie directement le quartier au coeur historique de Béziers.
Les plages de Valras et Sérignan sont accessibles en 15 à 20 minutes en voiture.
Ce duplex conjugue tranquillité et vie citadine, offrant un cadre de vie rare en centre-ville : un logement neuf, confortable et économe grâce à la climatisation gainable.
-Le plus : une place de stationnement privatif, en ville !
Les informations sur les risques auxquels ce bien est exposé sont disponibles sur le site Géorisques : www.georisques.gouv.fr
Prix de vente : 249 000 ¤
Honoraires charge vendeur
Contactez votre conseiller SAFTI : Charlotte LEBON, Tél. : 06 47 89 98 95, E-mail : charlotte.lebon@safti.fr - EI - Agent commercial immatriculé au RSAC de Béziers sous le numéro 933605073.
Informations LOI ALUR :
Honoraires charge vendeur. (gedeon_26118_32155508)




