Vente Appartement 34500, BEZIERS france 218 900 €
Descriptif du bien
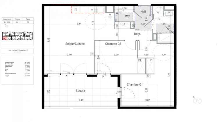
Cet appartement situé au premier étage de plus de 67 m² séduit par ses volumes généreux, sa luminosité et ses prestations de qualité. Vous profitez d'une loggia de plus de 14 m², idéale pour vos moments de détente ou repas en extérieur, tout en bénéficiant d'une vue dégagée. L'appartement se compose d'un séjour lumineux, d'une cuisine ouverte, de deux chambres confortables, d'une salle d'eau et de nombreux rangements. Côté stationnement, vous disposez d'une place de parking en sous-sol couvert, un véritable atout en milieu urbain. Doté de toutes les commodités du quotidien. La facilité d'accès et la mobilité ne sont pas en reste, la rocade est à seulement 2 minutes, permettant de rejoindre l'autoroute en 10 minutes. Dans un rayon de 300 mètres, 3 lignes de bus à forte fréquence desservent le quartier, dont une ligne au pied de la résidence. Au coeur de la résidence, un jardin intérieur planté d'essences méditerranéennes crée un véritable îlot de fraîcheur, apportant calme et bien-être à votre quotidien. Un bien rare à Béziers, idéal pour une résidence principale haut de gamme, ou un investissement immobilier patrimonial dans un quartier résidentiel recherché, à proximité de toutes les commodités. Contactez-moi dès maintenant pour plus d'informations ou organiser une visite. Prix de vente : 218 900 euros (honoraires charge du vendeur). Me contacter pour plus d'informations, plans (parkings, plan de masse ) et notice descriptive complète sur demande. Photos non contractuelles, DPE non requis. Selon l'article L.561.5 du Code Monétaire et Financier, pour l'organisation de la visite, la présentation d'une pièce d'identité vous sera demandée. Pour visiter et vous accompagner dans votre projet, contactez Michel HORNECKER, au 0699405021 ou par courriel à m.hornecker@proprietes-privees.com Cette présente annonce a été rédigée sous la responsabilité éditoriale de Michel HORNECKER agissant sous le statut d'agent commercial immatriculé au RSAC BEZIERS 824 253 710 spécialisé en cession de fonds de commerces , auprès de la SAS PROPRIETES PRIVEES, Réseau national immobilier, au capital de 40000 euros, 44 ALLÉE DES CINQ CONTINENTS - ZAC LE CHÊNE FERRÉ, 44120 VERTOU, RCS Nantes n° 487 624 777 00040, Carte professionnelle T et G n° CPI 4401 2016 000 010 388 CCI Nantes-Saint Nazaire. Garantie GALIAN - 89 rue de la Boétie, 75008 Paris Mandat réf : 418391 - Le professionnel garantit et sécurise votre projet immobilier. Michel HORNECKER (EI) Agent Commercial - Numéro RSAC : BEZIERS 824 253 710 Les informations sur les risques auxquels ce bien est exposé sont disponibles sur le site Géorisques : www.georisques.gouv.fr Copropriété de 332 lots (). Charges annuelles : 1 euros. Michel HORNECKER (EI) Agent Commercial - Numéro RSAC : BEZIERS 493044283 - .





