Vente Appartement 34500, BEZIERS france 399 900 €
Descriptif du bien
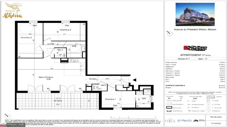
Rarrissime et exceptionnel !!! Appartement T4 neuf en frais de notaire réduits offrant 92 m² avec terrasse de 20 m² au 7° et dernier étage avec ascenseur de La résidence Athéna, évocation de la déesse aux multiples visages, en référence à l’histoire, au patrimoine culturel riche, aux nombreuses activités et manifestations dont bénéficie la trépidante ville de BEZIERS, Très bien situé à proximité du plateau des poètes et face au centre commercial et de loisirs du Polygone. Cette résidence surprendra par son architecture résolument contemporaine, faite d’imbrication de boites de différentes teintes. Elle propose un large choix d’appartement du T1 au T4 avec ascenseur et parkings privatifs. Elle offre tous les avantages de sa situation urbaine avec des commerces en pied d'immeuble. Traversez son hall d’entrée majestueux et découvrez à l’arrière de la résidence une véritable oasis de verdure, grâce à son îlot central en restanque au traitement paysager raffiné, dédié aux moments de détente et de convivialité des résidents. Prix TTC et Honoraires à charge vendeur TTC



