Vente Appartement 34500, BEZIERS france 180 142 €
Descriptif du bien
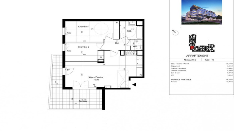
Situé sur l'avenue du Président Wilson, à proximité immédiate du plateau des Poètes ainsi que du centre commercial et de loisirs Le Polygone, ce bien pourrait parfaitement correspondre à vos critères de recherche. Ce T3 de plus de 66 m², situé au 2ème étage, propose un séjour avec cuisine ouverte donnant sur une terrasse de plus de 19 m² exposée Ouest, deux chambres, une salle de bain et des WC séparés. L'accès à la résidence est entièrement sécurisé, et l'appartement offre des prestations de qualité. Il dispose également d'une place de parking privative en sous-sol. La résidence bénéficie par ailleurs de nombreuses commodités et activités à proximité, pour un cadre de vie à la fois pratique et agréable. Me contacter pour plus d'informations, plans (parkings, plan de masse ) et notice descriptive complète sur demande. Photos non contractuelles, DPE non requis. Prix de vente : 181 141,25 euros TTC (TVA réduite à 5,5 % ? honoraires à la charge du vendeur) Selon l'article L.561.5 du Code Monétaire et Financier, pour l'organisation de la visite, la présentation d'une pièce d'identité vous sera demandée. Pour visiter et vous accompagner dans votre projet, contactez Michel HORNECKER, au 0699405021 ou par courriel à m.hornecker@proprietes-privees.com Cette présente annonce a été rédigée sous la responsabilité éditoriale de Michel HORNECKER agissant sous le statut d'agent commercial immatriculé au RSAC BEZIERS 824 253 710 spécialisé en cession de fonds de commerces , auprès de la SAS PROPRIETES PRIVEES, Réseau national immobilier, au capital de 40000 euros, 44 ALLÉE DES CINQ CONTINENTS - ZAC LE CHÊNE FERRÉ, 44120 VERTOU, RCS Nantes n° 487 624 777 00040, Carte professionnelle T et G n° CPI 4401 2016 000 010 388 CCI Nantes-Saint Nazaire. Garantie GALIAN - 89 rue de la Boétie, 75008 Paris Mandat réf : 409882 - Le professionnel garantit et sécurise votre projet immobilier. Michel HORNECKER (EI) Agent Commercial - Numéro RSAC : BEZIERS 824 253 710 Les informations sur les risques auxquels ce bien est exposé sont disponibles sur le site Géorisques : www.georisques.gouv.fr Copropriété de 119 lots (). Charges annuelles : 1 euros. Michel HORNECKER (EI) Agent Commercial - Numéro RSAC : BEZIERS 493044283 - .




