Vente Appartement 68980, Beblenheim france 399 000 €
Descriptif du bien
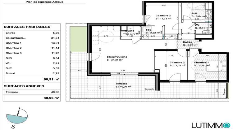
Découvrez ce magnifique appartement de 4 pièces de 91 m² situé en ATTIQUE donc au dernier étage de cette petite copropriété de 15 logements.
Il se compose d'un séjour avec cuisine ouverte de 34 m² exposé Sud-Ouest donnant sur une grande terrasse de 41m2. L'appartement dispose de 3 chambres spacieuses dont 1 chambre parentale avec salle d'eau privative ainsi que d'une deuxième salle de bain équipée.
Ces derniers respectent les normes RE2020, garantissant performance énergétique en été comme en hiver, ainsi que des équipements et matériaux de qualité.
La résidence dispose de garages fermés situés en sous-sol et directement accessibles avec l'ascenseur depuis les étages. Tous les garages sont équipés d'une prise de courant et d'un point lumineux.
La résidence du Domaine VINOSA est également doté de parkings privatifs en extérieur.
Cet appartement bénéficie de prestations de qualités aux normes RE2020 mais surtout des prestations signées GLD PROMOTION :
- Plancher chauffant dans tout l'appartement,
- Pompe à chaleur (PAC),
- Volets roulants électriques dans toutes les pièces avec coffre intégré sous linteau (non apparent dans les pièces),
- Isolation thermique et accoustique renforcée,
- Sélection de matériaux de qualité : carrelage 60X60 et faïence T1,T2, T2+ et quelques 6.0 de chez notre partenaire FORGIARINI,
- Large choix de parquets stratifiés pour les pièces de nuit,
- Fibre lisse aux murs,
- Salle de bain entièrement équipée : faïence toute hauteur sur les 4 murs, douche extra plat pour accessibilité PMR, meuble avec tiroirs et vasque (plusieurs coloris au choix), miroir et spot led intégré, sèche-serviette à lames plates pour compléter le plancher chauffant,
- Portes stratifiées dans tout le logement (plusieurs coloris aux choix selon les goûts),
- Placard d'entrée inclus et aménagé avec portes coulissantes, différents coloris au choix,
- WC suspendus séparés avec lave mains et faïence murale sur les 4 murs à hauteur du bâti support,
- Belles finitions avec dalles sur plot en grès Cérame sur les balcons et terrasses,
- Aucun seuil pour sortir sur les balcons ou terrasses et directement accessibles pour les personnes à mobilité réduite (PMR),
- Sécurisation de la résidence via un videophone,
- Portes palières blindées,
- Domaine VINOSA est entièrement clos pour une vraie sérénité,
- Local vélos en sous-sol pour sécuriser vos 2 roues, tricycles et poussettes sans prendre de place dans vos garages,
- Espaces verts aménagés et agrémentés,
- Parties communes intérieures soignées et personnalisées par GLD PROMOTION.
Beblenheim est un village pittoresque alsacien, situé au coeur du vignoble alsacien, à proximité de Colmar. Entouré de paysages verdoyants et de vignes, il offre un cadre de vie paisible, tout en étant proche des attractions touristiques comme les villages de Riquewihr et Kaysersberg mais aussi très proche de la petite ville de Ribeauvillé. Idéal pour les amoureux de la nature et du calme, Beblenheim combine charme et praticité.
Pas de frais d'agence. Vente directe du promoteur GLD PROMOTION basé à Sausheim.
Prix de vente TTC : 399 000 clé en main
Pas de frais d'agence / Frais de notaire réduits !
Ne manquez pas cette opportunité rare de vivre dans un lieu unique !
Pour plus d'informations, contactez nous dès aujourd'hui - 03.89.62.78.68 - contact@lutimmo.fr
LUTIMMO Agence immobilière à Sausheim (58 ...
- Type de bien : Appartement
- Surface : 90 m²
- Localisation : France - Grand Est - Rhin (Haut)
- Ville : Beblenheim
- Code postal : 68980
- Annonce créée le 13/03/2026


