Vente Appartement 60000, Beauvais france 109 000 €
Descriptif du bien
Idéal investisseur Forom® Immobilier
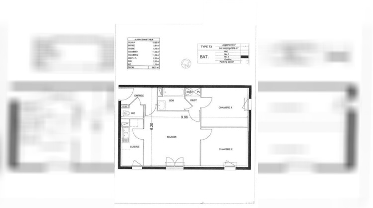
Forom Immobilier vous propose cet appartement T3 d'une surface d'environ 59,23 m² au 2ème et dernier étage situé dans une résidence sécurisée sur la commune de Beauvais.
Le logement dispose d'un séjour, une cuisine séparée, deux chambres, une salle de bains, un WC et une place de parking.
Locataire sérieux en place depuis plus de 10 ans !
Loyer mensuel : 669 / mois soit 622 HC + 47 CL
Rentabilité : 7,37% brute
Charges de copropriété : 79,41 / mois
Eau chaude et chauffage individuels électrique
Taxe foncière : 1 577 / an (dont 152 de TEOM remboursée par le locataire)
Date de fin de bail : 07/10/2027
DPE : D
Nombre de lots : 105
Honoraires charge vendeur
Honoraires à la charge du vendeur. Dans une copropriété de 105 lots. Aucune procédure n'est en cours. Classe énergie D, Classe climat B Montant estimé des dépenses annuelles d'énergie pour un usage standard : entre 1.00 et 1.00 sur les années 2021, 2022 et 2023 (abonnements compris). Les informations sur les risques auxquels ce bien est exposé sont disponibles sur le site Géorisques : georisques.gouv.fr.
- Type de bien : Appartement
- DPE : D - 151 à 230 kWh/².an
- GES : B - 6 à 10 kg eq CO2/².an
- Surface : 59 m²
- Localisation : France - Hauts-de-France - Oise
- Ville : Beauvais
- Code postal : 60000
- Annonce créée le 27/02/2026


