Vente Appartement 95250, BEAUCHAMP france 314 900 €
Descriptif du bien
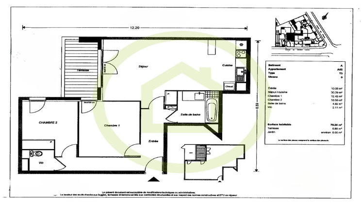
Découvrez cet élégant appartement T3 de 70,20 m² habitables. Les façades allient avec charme pierre meulière et enduits clairs, agrémentées de balcons et loggias pour une allure raffinée et intemporelle. Situé en rez-de-chaussée, cet appartement se compose de : Un séjour spacieux de 30,29 m² avec cuisine ouverte Deux chambres confortables : 12,43 m² et 10,50 m² Une salle de bain avec baignoire. Un WC indépendant Un hall d’entrée généreux de 10m² Vous bénéficiez également d’un extérieur privatif avec : Une terrasse de 7 m² et un jardin de 8 m² Une place de parking intérieure La résidence est entièrement sécurisée avec visiophone, alarme individuelle et est clôturée. Elle propose des espaces dédiés aux deux-roues. Prix de vente 314 900 € Honoraires à la charge du vendeur Montant estimé des dépenses annuelles d'énergie pour un usage standard : entre 590 € et 850 € par an. Prix moyens des énergies indexés sur les années 2021 2022 2023 (abonnement compris). DPE : C GES : C Pour visiter et vous accompagner dans votre projet, contactez John LI LUN YUK 06 14 75 28 53 Selon l'article L.561.5 du Code Monétaire et Financier, pour l'organisation de la visite, la présentation d'une pièce d'identité vous sera demandée. Les informations sur les risques auxquels ce bien est exposé sont disponibles sur le site Géorisques : www.georisques.gouv.fr Cette présente annonce a été rédigée sous la responsabilité éditoriale de John LI LUN YUK agissant sous le statut de salarié indépendant auprès de FCI Immobilier. Assurance responsabilité civile professionnelle : n° de police 00000006322411804. Le professionnel garantit et sécurise votre projet immobilier.Réseau national immobilier sur internet, 44 Allée des Cinq Continents - 44120 VERTOU - RNE NANTES 519 718 886. Carte professionnelle T et G n° CPI 3002 2018 000 024 971 CCI de Nantes-Saint-Nazaire (44) Garantie par GALIAN – 89 rue de la Boétie - 75008 Paris N°171379G pour 120 000€ pour T. Assurance responsabilité civile professionnelle par GALIAN n° de police 120 137 405 (réf. 37228) - Le professionnel garantit et sécurise votre projet immobilier Prix de vente 314 900 € Honoraires à la charge du vendeur Montant estimé des dépenses annuelles d'énergie pour un usage standard : entre 590 € et 850 € par an. Prix moyens des énergies indexés sur les années 2021 2022 2023 (abonnement compris). DPE : C GES : C
- Type de bien : Appartement
- DPE : C - 91 à 150 kWh/².an
- GES : C - 11 à 20 kg eq CO2/².an
- Surface : 70 m²
- Localisation : France - ile-de-france - Val d'oise
- Ville : BEAUCHAMP
- Code postal : 95250
- Annonce créée le 09/02/2026

