Vente Appartement 35470, Bain-de-Bretagne france 180 700 €
Descriptif du bien
LE QUAI à BAIN DE BRETAGNE - 2ème PHASE
Découvrez cette nouvelle résidence idéalement située à Bain-de-Bretagne ! Que vous cherchiez un appartement pour y habiter ou pour un investissement locatif, LE QUAI vous offre un logement de 2 ou 3 pièces où vous y trouverez l'espace idéal pour créer un cocon familial et y vivre paisiblement.
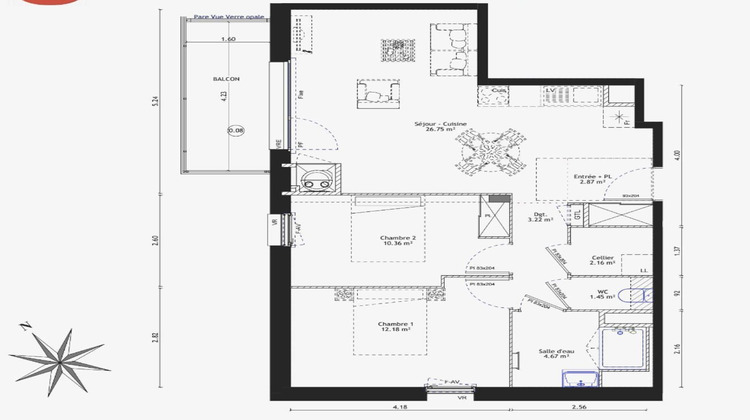
L'appartement présenté ici est un T3 de 63m2 situé au 1er étage. Il se compose d'une entrée, une pièce de vie ouvrant sur un balcon exposé ouest, deux chambres, une salle d'eau et un cellier.
Deux places de stationnement extérieures sont vendues avec le logement.
Vous bénéficierez de tout le confort des logements neufs avec notamment : un accès sécurisé, un parking privatif et le respect des nouvelles normes environnementales et énergétiques au sein d'un cadre qui allie nature et vie urbaine.
Vous pourrez profiter d'un accès facile aux différents commerces, transports en communs, écoles et activités de Bain-de-Bretagne et de ses alentours.
Livraison au 4ème trimestre 2027. D'autres lots sont encore disponibles.
Pour plus de renseignements, n'hésitez plus et contactez-nous !
Honoraires à la charge du vendeur. Dans une copropriété de 128 lots. Aucune procédure n'est en cours. Classe énergie A, Classe climat A Montant moyen estimé des dépenses annuelles d'énergie pour un usage standard, établi à partir des prix de l'énergie de l'année 2021 : entre 400.00 et 600.00 . Les informations sur les risques auxquels ce bien est exposé sont disponibles sur le site Géorisques : georisques.gouv.fr.
.
Les informations sur les risques auxquels ce bien est exposé sont disponibles sur le site Géorisques : www.georisques.gouv.fr
Lemoine Beunet immobilier, votre agence immobilière à Bain de Bretagne !
Descriptif complet de nos biens immobilier à Bain de Bretagne et alentours sur le site de Lemoine Beunet immobilier.
- Type de bien : Appartement
- DPE : A -< 51 kWh/².an
- GES : A -< 6 kg eq CO2/².an
- Surface : 63 m²
- Localisation : France - Bretagne - Ile et Vilaine
- Ville : Bain-de-Bretagne
- Code postal : 35470
- Annonce créée le 13/03/2026





