Vente Appartement 56870, BADEN france 395 000 €
Descriptif du bien
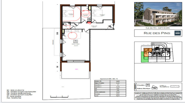
PROJET DE VIE- Niché au coeur du bourg de Baden dans son environnement paisible. Ce projet conçu par un architecte s'inscrit dans une résidence de qualité soigneusement aménagée, préservant ainsi l'esprit hameau dans un espace vert préservé dans une démarche écologique. Cet appartement de type 4, situé en rez-de-chaussée, offre une superficie totale d'environ 72 m², avec de charmants espaces jardin et terrasse. L'entrée, avec placards intégrés, ouvre sur un couloir qui mène aux deux grandes chambres, à la salle d'eau et aux WC. Elle communique également avec le grand séjour lumineux et à sa cuisine ouverte s'ouvrant sur une belle terrasse de 16 m², orientée plein sud et de 70 m² environ de jardin à usage privatif. L'appartement dispose de deux places de parking. Conçue avec une attention particulière à la fluidité des espaces communs, à la luminosité et à l'utilisation de matériaux de qualité, cette résidence offre un cadre de vie privilégié où règnent confort et douceur de vivre. L'accès à l'ensemble est entièrement sécurisé, et l'appartement bénéficie de prestations de qualité. Les parties communes, facilement accessibles et conformes aux dernières normes de construction, complètent cet ensemble. L'appartement est proposé avec des finitions de qualité, incluant peintures, revêtements de sol et salles d'eau équipées. Le mobilier de cuisine et l'électroménager sont en option. Son exposition sud, la conformité à la RT 2020, l'utilisation de matériaux biosourcés, garantissent un niveau de performance énergétique proche de la norme passive. Un véritable projet de vie au coeur de Baden, à proximité immédiate des commerces, des plages et des sentiers côtiers, ainsi que d'un golf 18 trous et d'un chantier naval. A seulement 20 minutes de Vannes, 15 minutes d'Auray, et à 2h30 de Paris en TGV. Prix : 395 000 euros les honoraires sont à la charge du vendeur. Pour vous accompagner dans votre projet, et pour plus d'informations, n'hésitez pas à me contacter au 06 16 57 45 68 ou par e-mail. Cette annonce est rédigée sous la responsabilité éditoriale de Sibylle VINCHON, consultante en immobilier immatriculée au RSAC de Vannes sous le numéro 448 662 783, agissant pour le compte de la SAS PROPRIETES PRIVEES, réseau national immobilier sur internet. Adresse du siège social : ZAC du Chêne Ferré, 44 Allée des Cinq Continents, 44120 VERTOU, RCS NANTES n° 487 624 777. Carte professionnelle T et G n° CPI 4401 2016 000 010 388 délivrée par la CCI Nantes-Saint Nazaire. Garantie GALIAN, 89 rue La Boétie, 75008 Paris - Montants de garantie financière : 1 500 000 euros pour le fonds et 120 000 euros pour la responsabilité civile. Mandat ref : 417643 - Le professionnel garantit et sécurise votre projet immobilier. Copropriété de 10 lots (). Charges annuelles : 1296 euros. Sibylle VINCHON (EI) Agent Commercial - Numéro RSAC : VANNES 448662783 - .

