Vente Appartement 84000, Avignon france 415 000 €
Descriptif du bien
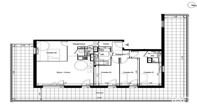
Iad France - Céline Inaudi (06 58 44 63 26) vous propose : Appartement familial 5 pièces avec grande terrasse - AvignonD'une surface de 91.16 m² environ habitables l'appartement se compose comme suit : EntréeSéjour avec cuisine ouverte de 28,60 m² environ4 chambres : Chambre 1 : 12,18 m² environ en suite avec sa salle d'eauChambre 2 : 11,62 m² environChambre 3 : 10,89 m² environChambre 4 : 10,07 m² environSalle de bainWC séparéLa terrasse de près de 90 m² environ entoure le logement et est accessible depuis la pièce de vie et toutes les chambres, offrant un véritable espace de vie extérieur. Les prestations Chauffage individuel air / air type climatisation réversibleEau chaude par ballon thermodynamiqueMenuiseries aluminium double vitrageVolets roulantsRésidence sécurisée avec contrôle d'accèsEspaces paysagers communsQuartier bien desservi : Ligne de bus N°902, C2 et E1 (arrêt combe) à 120mètresAutoroute A7 à 3kmGare Avignon Centre à 2.9kmCommerces, écoles et collège à proximitéA seulement, 15 minutes à pied des remparts d'Avignon et du centre historique. Disponibilité prévisionnelle : 2027Pour recevoir le dossier complet de cet appartement contactez-moiHonoraires d'agence à la charge du vendeur. Bien non soumis au DPE. Les informations sur les risques auxquels ce bien est exposé sont disponibles sur le site Géorisques : www.georisques.gouv.fr. La présente annonce immobilière a été rédigée sous la responsabilité éditoriale de Mlle Céline Inaudi EI (ID 85801), mandataire indépendant en immobilier (sans détention de fonds), agent commercial de la SAS I@D France immatriculé au RSAC de Avignon sous le numéro 532514403, titulaire de la carte de démarchage immobilier pour le compte de la société I@D France SAS. Retrouvez tous nos biens sur notre site internet. www.iadfrance.fr.Informations LOI ALUR : Honoraires charge vendeur. (gedeon_6727_32863075)
- Type de bien : Appartement
- Surface : 91 m²
- Localisation : France - provence-alpes-cote-d-azur - Vaucluse
- Ville : Avignon
- Code postal : 84000
- Annonce créée le 19/03/2026




