Vente Appartement 84000, Avignon france 281 000 €
Descriptif du bien
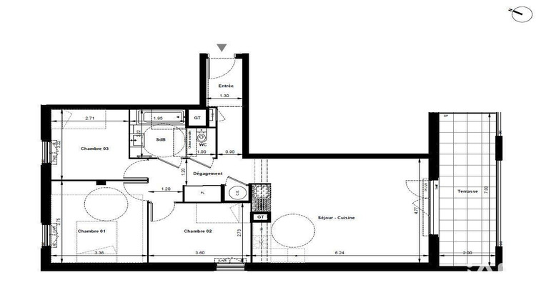
Iad France - Céline Inaudi (06 58 44 63 26) vous propose : Découvrez cet appartement 4 pièces de 78 m² environ avec terrasse, situé au 1er étage d'une résidence sécurisée proche des commerces, transports et du centre d'Avignon. Un logement idéal pour une famille ou un premier achat, offrant des espaces bien distribués et un agréable extérieur. L'appartement propose une distribution fonctionnelle : EntréeSéjour avec cuisine ouverte 29,06 m² environ3 chambres : Chambre 1 : 12,53 m² environChambre 2 : 9,73 m² environChambre 3 : 9,33 m² environSalle de bainWC séparéDégagement avec rangementsLe séjour s'ouvre sur une terrasse d'environ 14 m exposée SUD, idéale pour profiter des beaux jours. Les prestations Chauffage individuel air / air type climatisation réversibleEau chaude par ballon thermodynamiqueMenuiseries aluminium double vitrageVolets roulantsRésidence sécurisée avec contrôle d'accèsEspaces paysagers communsQuartier bien desservi : Ligne de bus N°902, C2 et E1 (arrêt combe) à 120mètresAutoroute A7 à 3kmGare Avignon Centre à 2.9kmCommerces, écoles et collège à proximitéA seulement, 15 minutes à pied des remparts d'Avignon et du centre historique. Disponibilité prévisionnelle : 2027Pour recevoir le dossier complet de cet appartement contactez-moiHonoraires d'agence à la charge du vendeur. Bien non soumis au DPE. Les informations sur les risques auxquels ce bien est exposé sont disponibles sur le site Géorisques : www.georisques.gouv.fr. La présente annonce immobilière a été rédigée sous la responsabilité éditoriale de Mlle Céline Inaudi EI (ID 85801), mandataire indépendant en immobilier (sans détention de fonds), agent commercial de la SAS I@D France immatriculé au RSAC de Avignon sous le numéro 532514403, titulaire de la carte de démarchage immobilier pour le compte de la société I@D France SAS. Retrouvez tous nos biens sur notre site internet. www.iadfrance.fr.Informations LOI ALUR : Honoraires charge vendeur. (gedeon_6727_32863074)
- Type de bien : Appartement
- Surface : 78 m²
- Localisation : France - provence-alpes-cote-d-azur - Vaucluse
- Ville : Avignon
- Code postal : 84000
- Annonce créée le 19/03/2026





