Vente Appartement 84000, AVIGNON france 213 638 €
Descriptif du bien
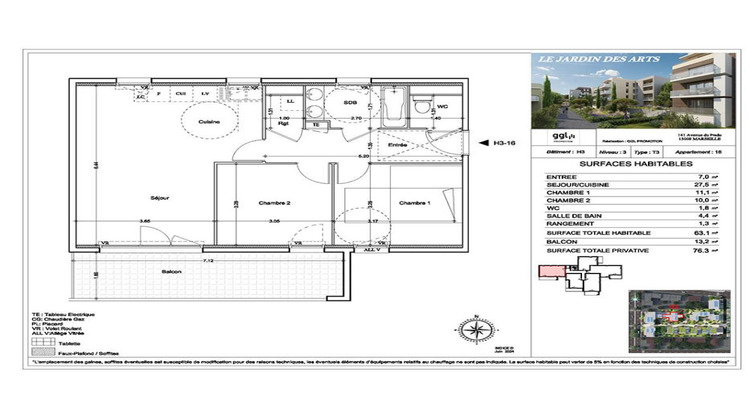
Vous rêvez d'un appartement alliant confort, nature et praticité ? La résidence Le Jardin des Arts vous ouvre ses portes sur Avignon, avec une opportunité unique de bénéficier de la TVA réduite à 5,5%, du prêt à taux zéro et de frais de notaire réduits.* Située à proximité immédiate des commerces, des écoles et des équipements culturels, cette résidence propose un cadre de vie idéal, à mi-chemin entre ville et nature. Son jardin paysager de plus de 4 000 m², en coeur d'îlot, offre un véritable havre de paix, libre de toute circulation, pour des moments de détente et de sérénité. Le Jardin des Arts propose des appartements lumineux du 2 au 4 pièces, aux espaces fonctionnels et confortables, conçus pour répondre à toutes vos attentes. Profitez de terrasses généreuses offrant des points de vue apaisants sur la végétation méditerranéenne environnante et imaginez vos instants de convivialité ou de farniente en famille ou entre amis. Pour votre confort et votre sécurité : Chauffage individuel par panneaux rayonnants Eau chaude individuelle par ballon thermodynamique Carrelage grès cérame aux couleurs actuelles Résidence fermée et sécurisée avec accès par Vigik® et digicode Parkings sécurisés en sous-sol et en extérieur Emplacement privilégié : 15 minutes de l'hyper-centre à vélo Tram à 400 mètres à pied Écoles maternelle et lycée à 2 minutes à pied Gare TGV à 8 minutes en voiture Marseille à 1h Livraison prévue au 3ème trimestre 2026. Ne manquez pas cette opportunité d'allier investissement malin et qualité de vie. *Sous conditions d'éligibilité (résidence principale et conditions de ressources). PRIX DE 213638 euros INDIQUES EN TVA 5.5% Pour vous accompagner dans votre projet, contactez Pamela SALVADOR BONNIN, au 0614179167 ou, par courriel à p.salvadorbonnin@proprietes-privees.com. Selon l'article L.561.5 du Code Monétaire et Financier, pour l'organisation de la visite, la présentation d'une pièce d'identité vous sera demandée. Cette annonce a été rédigée sous la responsabilité éditoriale de Pamela SALVADOR BONNIN agissant sous le statut d'agent commercial immatriculé au RSAC 949409007 RSAC Nîmes auprès de SAS PROPRIETES PRIVEES, au capital de 44 920 euros, ZAC LE CHÊNE FERRÉ - 44 ALLÉE DES CINQ CONTINENTS 44120 VERTOU ; SIRET 487 624 777 00040, RCS Nantes. Carte Professionnelle Transactions sur immeubles et fonds de commerce (T) et Gestion immobilière (G) n°CPI 4401 2016 000 010 388 délivrée par la CCI Nantes - Saint Nazaire. Compte séquestre n°30932508467 BPA SAINT-SEBASTIEN-SUR-LOIRE (44230). Garantie GALIAN-SMABTP - 89 rue de la Boétie, 75008 Paris - n°28137 J pour 2 000 000 euros pour T et 120 000 euros pour G. Assurance responsabilité civile professionnelle par GALIAN-SMABTP n° de police 28137.J Mandat réf : 430872. - Le professionnel garantit et sécurise votre projet immobilier. Pamela SALVADOR BONNIN (EI) Agent Commercial - Numéro RSAC : 949409007 RSAC Nîmes - . Les informations sur les risques auxquels ce bien est exposé sont disponibles sur le site Géorisques : www. georisques. gouv. fr
- Type de bien : Appartement
- Surface : 63 m²
- Localisation : France - provence-alpes-cote-d-azur - Vaucluse
- Ville : AVIGNON
- Code postal : 84000
- Annonce créée le 06/12/2025




