Vente Appartement 84000, Avignon france 194 500 €
Descriptif du bien
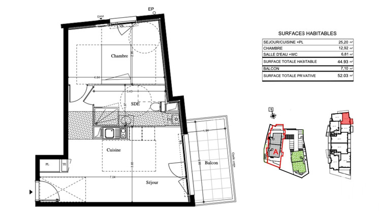
Iad France - David Mancarella (07 89 68 46 47) vous propose : Découvrez ce charmant T2, idéalement conçu pour un confort optimal. Il se compose d'un séjour lumineux ouvrant sur un balcon, d'un espace cuisine aménagé, d'une chambre spacieuse, ainsi que d'une salle de bains moderne avec WC.
Prestations et équipements de qualité :
- Cuisine équipée : plan de travail stratifié, évier inox, plaques vitrocéramiques, hotte aspirante
- Séjour avec double vitrage et volets roulants électriques
- Chauffage assuré par une chaudière au gaz
- Salle de bains équipée d'un meuble vasque et sèche-serviette
- Résidence sécurisée avec digicode
Une place de parking couverte est incluse
Situé dans un quartier dynamique d'Avignon, cet appartement bénéficie d'un accès rapide aux commerces, transports et axes routiers, tout en étant à quelques minutes du centre-ville.
Un bien parfait pour habiter ou investir !
N'attendez plus, contactez-moi dès aujourd'hui pour organiser une visite et obtenir plus d'informations.
Honoraires d'agence à la charge du vendeur. Bien non soumis au DPE. Les informations sur les risques auxquels ce bien est exposé sont disponibles sur le site Géorisques : www.georisques.gouv.fr. La présente annonce immobilière a été rédigée sous la responsabilité éditoriale de M. David Mancarella EI (ID 35330), mandataire indépendant en immobilier (sans détention de fonds), agent commercial de la SAS I@D France immatriculé au RSAC de AVIGNON sous le numéro 439 028 424, titulaire de la carte de démarchage immobilier pour le compte de la société I@D France SAS.
Retrouvez tous nos biens sur notre site internet. www.iadfrance.fr.
Informations LOI ALUR :
Honoraires charge vendeur. (gedeon_6727_30873665)
- Type de bien : Appartement
- Surface : 45 m²
- Localisation : France - provence-alpes-cote-d-azur - Vaucluse
- Ville : Avignon
- Code postal : 84000
- Annonce créée le 20/03/2025



