Vente Appartement 93300, Aubervilliers france 139 000 €
Descriptif du bien
Iad France - Adeline Zammit (06 68 08 68 94) vous propose : Au sein d'une petite copropriété des années 1930, idéalement située, découvrez cet agréable appartement de type F2.
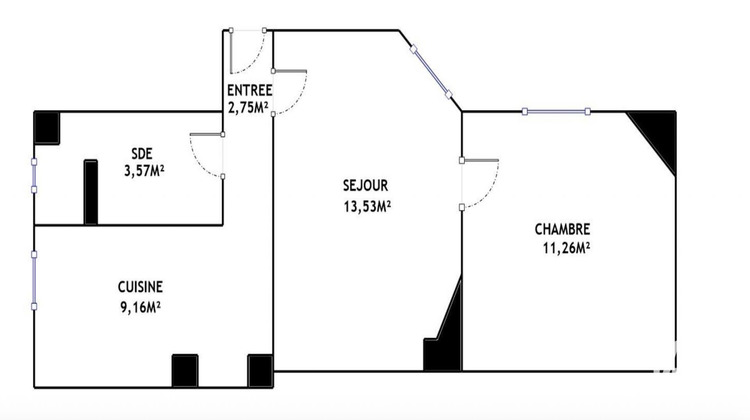
Le bien se compose d'une entrée, d'un séjour lumineux, d'une chambre, d'une cuisine indépendante, ainsi que d'une salle d'eau avec WC.
L'appartement bénéficie d'une proximité immédiate aux commerces, transports et commodités.
Secteur bien desservi : accès rapide aux axes principaux et aux transports en commun.
Appartement Idéal pour une première acquisition ou investissement locatif.
La présente annonce immobilière vise 1 lot principal situé dans une copropriété formant 7 lots au total ne faisant l'objet d'aucune procédure en cours et d'un montant de charges d'environ 36.67 ¤ par mois (soit 440.04 ¤ annuel) déclaré par le vendeur. Honoraires d'agence à la charge du vendeur. Information d'affichage énergétique sur ce bien : classe ENERGIE F indice 396 et classe CLIMAT C indice 13. Les informations sur les risques auxquels ce bien est exposé sont disponibles sur le site Géorisques : www.georisques.gouv.fr. La présente annonce immobilière a été rédigée sous la responsabilité éditoriale de Mlle Adeline Zammit EI (ID 51788), mandataire indépendant en immobilier (sans détention de fonds), agent commercial de la SAS I@D France immatriculé au RSAC de BOBIGNY sous le numéro 950941773, titulaire de la carte de démarchage immobilier pour le compte de la société I@D France SAS. Le présent bien est commercialisé dans le cadre d'une délégation de mandat.
Retrouvez tous nos biens sur notre site internet. www.iadfrance.fr.
Informations LOI ALUR :
Soumis au régime de copropriété.
Nombre de lots : 7.
Quote part annuelle(moyenne) : 440.04 euros.
Honoraires charge vendeur. (gedeon_6727_32565995)
- Type de bien : Appartement
- DPE : F - 331 à 450 kWh/².an
- GES : C - 11 à 20 kg eq CO2/².an
- Surface : 41 m²
- Localisation : France - ile-de-france - Seine Saint Denis
- Ville : Aubervilliers
- Code postal : 93300
- Annonce créée le 05/02/2026




