Vente Appartement 01340, ATTIGNAT france 390 000 €
Descriptif du bien
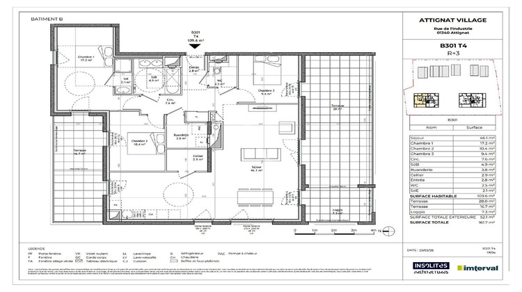
Situé en plein coeur du village d'Attignat, avec toutes les commodités et commerces accessibles à pied par son cheminement pédestre, ce nouveau programme immobilier offre des logements de qualité tous avec terrasse ou jardin privatif et possibilité de garage fermé en sous-sol et /ou parking sécurisé dans l'enceinte du clos. Appartement de type 4 traversant au calme, répondant à la dernière norme thermique RE2020, belles prestations il est composé d'une entrée avec dégagement ouvert sur un vaste séjour lumineux exposé côté SUD et traversant 3 expositions avec cuisine ouverte donnant sur terrasse et loggia, 3 chambres avec un accès sur l'extérieur, salle de bain, salle d'eau, buanderie et WC séparés. Garages en sous-sol en option. Ce logement répond à toutes les attentes en terme de confort, calme et sécurité tout en profitant de la richesse des commodités du centre village. Venez découvrir ce nouveau programme dans notre bulle de vente sur place ou contactez-nous au 04.74.45.06.00. Nous vous expliquerons tous les avantages d'acheter un logement neuf. *prix TTC, frais de notaire réduits
- Type de bien : Appartement
- Surface : 109 m²
- Localisation : France - Auvergne-Rhône-Alpes - Ain
- Ville : ATTIGNAT
- Code postal : 01340
- Annonce créée le 10/03/2026





