Vente Appartement 01340, ATTIGNAT france 120 000 €
Descriptif du bien
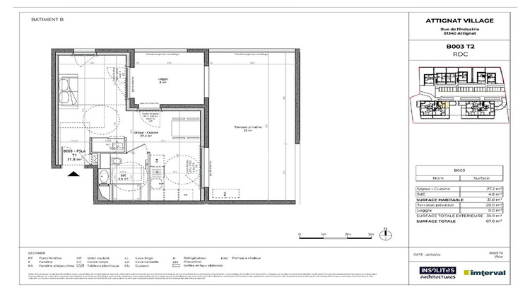
Situé en plein coeur du village d'Attignat, avec toutes les commodités et commerces accessibles à pied par son cheminement pédestre, ce nouveau programme immobilier offre des logements de qualité tous avec terrasse ou jardin privatif et possibilité de garage fermé en sous-sol et /ou parking sécurisé dans l'enceinte du clos. Appartement de type 1Bis au calme, répondant à la dernière norme thermique RE2020, belles prestations il est composé d'une entrée, d'une salle de séjour ouverte sur la cuisine, d'un espace nuit, d'une salle d'eau avec WC, une belle loggia de 8m² et d'une terrasse privative de 28m². Ce logement répond à toutes les attentes en terme de confort, calme et sécurité tout en profitant de la richesse des commodités du centre village. Venez découvrir ce nouveau programme dans notre bulle de vente sur place ou contactez-nous au 04.74.45.06.00. Nous vous expliquerons tous les avantages d'acheter un logement neuf. *prix TTC, frais de notaire réduits
- Type de bien : Appartement
- Surface : 31 m²
- Localisation : France - Auvergne-Rhône-Alpes - Ain
- Ville : ATTIGNAT
- Code postal : 01340
- Annonce créée le 23/09/2025





