Vente Appartement 33370, Artigues-près-Bordeaux france 285 000 €
Descriptif du bien
DOMINEZ LE CENTRE VILLE D'ARTIGUES - TERRASSE - PARKING
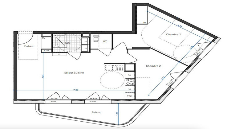
Idéalement situé, à proximité de la mairie, de son parc arboré et au sein d'une jolie résidence à taille humaine, venez découvrir ce bel appartement T3 de 65m2.
Il se compose d'une entrée donnant accès à une spacieuse pièce de vie de 31m2, très lumineuse grâce à ses deux ouvertures sur sa terrasse de 8m2 exposée Ouest.
Côté nuit, vous disposerez de deux chambres avec placard, une salle d'eau ainsi qu'un WC indépendant.
Une place de parking sécurisée en sous-sol complètent ce bien en sus obligatoire (20 000).
- Frais de notaire OFFERTS
- Garanties
- Exonération de Taxe Foncière
- Normes RE 2020
- ...
*Visuel non contractuel
DOMINEZ LE CENTRE VILLE D'ARTIGUES - TERRASSE - PARKING
Honoraires à la charge du vendeur. Dans une copropriété de 43 lots. Aucune procédure n'est en cours. DPE en cours. Les informations sur les risques auxquels ce bien est exposé sont disponibles sur le site Géorisques : georisques.gouv.fr.
Votre conseiller RH Patrimoine : Alexandre VINEE-MUNOZ
Agent commercial (Entreprise individuelle)
RSAC 914 405 907
RCP MA035A20ANPM/02 - AACI/21951/28208
- Type de bien : Appartement
- Surface : 65 m²
- Localisation : France - Nouvelle-Aquitaine - Gironde
- Ville : Artigues-près-Bordeaux
- Code postal : 33370
- Annonce créée le 26/09/2025



