Vente Appartement 33370, Artigues-près-Bordeaux france 182 500 €
Descriptif du bien
Sous compromis : COEUR DE VILLE - LOCALISATION TANT RECHERCHEE
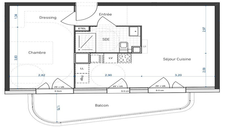
Idéalement situé, à proximité de la mairie, de son parc arboré et au sein d'une jolie résidence à taille humaine, venez découvrir ce bel appartement T2 de 45m2.
Il se compose d'une spacieuse pièce de vie de 25m2, très lumineuse grâce à ses deux ouvertures sur sa terrasse de 10m2 exposée Ouest.
Côté nuit, vous disposerez d'une chambre avec dressing ainsi que d'une salle d'eau avec WC.
Un appartement offrant de belles prestations, avec la climatisation, des menuiseries aluminiums, et un niveau de confort haut de gamme.
Une place de parking sécurisée en sous-sol complète ce bien en sus obligatoire (15 000).
- Frais de Notaire Réduits
- Garanties
- Exonération de Taxe Foncière
- Normes RE 2020
- ...
Visuel non contractuel - suggestion d'aménagement
COEUR DE VILLE - LOCALISATION TANT RECHERCHEE
Honoraires à la charge du vendeur. Dans une copropriété de 43 lots. Aucune procédure n'est en cours. DPE en cours. Les informations sur les risques auxquels ce bien est exposé sont disponibles sur le site Géorisques : georisques.gouv.fr.
Votre conseiller RH Patrimoine : Maxime HERVE
Agent commercial (Entreprise individuelle)
RSAC 133095555 J
RCP 13309666 J
- Type de bien : Appartement
- Surface : 45 m²
- Localisation : France - Nouvelle-Aquitaine - Gironde
- Ville : Artigues-près-Bordeaux
- Code postal : 33370
- Annonce mise à jour le 06/02/2026



