Vente Appartement 94110, Arcueil france 363 000 €
Descriptif du bien
Iad France - Aurélie Brouaye vous propose : Venez découvrir ce superbe Appartement de 3 pièces avec terrasse et parking -
Idéalement situé dans un quartier recherché ( Barbusse), à la croisée de Gentilly, et aux portes de Paris.
Ce cocon en rez-de-Jardin réunit tous les atouts d'un cadre de vie urbain paisible et pratique.
Vous êtes :
à 20 minutes à pied de la ligne 14 (stations Hôpital du Kremlin-Bicêtre et Gustave Roussy)
à 10 minutes à pieds de la gare RER B Laplace et Arcueil / Cachan
à proximité immédiate des arrêts de bus, des commerces, des écoles, et du groupe Sanofi
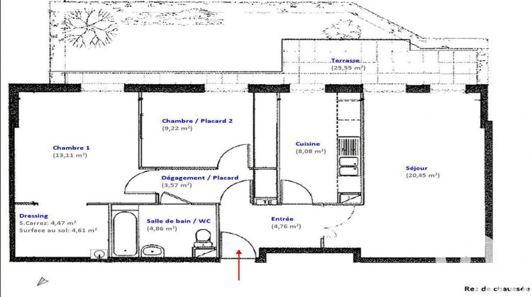
Situé dans une copropriété familiale de 9 lots récente (2010), sécurisée et bien entretenue, l'appartement s'ouvre sur une spacieuse entrée qui distribue la partie jour avec un salon lumineux et cuisine séparée (avec possibilité d'ouverture pour créer un espace de vie de plus de 30 m²)
Un deuxième dégagement avec rangements dessert la partie nuit avec deux chambres, dont une spacieuse de près de 18 m² incluant un super dressing, et Une salle de bains confortable avec WC.
Atout charme : LA TERRASSE !
La terrasse filante et végétalisée de 25 m² à l'exposition sud-est à l'abri des regards, est un véritable cocon extérieur : un lieu idéal pour recevoir, se détendre ou jardiner en toute tranquillité.
Bonus : une place de parking en extérieur complète ce bien.
Ce bien représente une belle opportunité tant pour y vivre que pour un investissement locatif, alors n'attendez pas pour venir le visiter !
La presente annonce immobiliere vise 2 lots situés dans une copropriété de 18 lots au total et ne faisant l'objet d'aucune procédure en cours citée à l'article L. 721-1 du code de la construction et de l'habitation. Montant moyen mensuel de charges déclaré par le vendeur : 139¤ par mois (soit 1668 ¤ annuel). Honoraires d'agence à la charge du vendeur.
Information d'affichage énergétique sur ce bien : classe ENERGIE C indice 152 et classe CLIMAT A indice 4. Les informations sur les risques auxquels ce bien est exposé, y compris l'obligation légale de débroussaillement, sont disponibles sur le site Géorisques : http://www.georisques.gouv.fr.
La présente annonce immobilière a été rédigée sous la responsabilité éditoriale de Mme Aurélie Brouaye mandataire indépendant en immobilier (sans détention de fonds), agent commercial de la SAS I@D France immatriculé au RSAC de Creteil sous le numéro 897670584, titulaire de la carte de démarchage immobilier pour le compte de la société I@D France SAS.
Informations LOI ALUR :
Soumis au régime de copropriété.
Nombre de lots : 18.
Quote part annuelle(moyenne) : 1668 euros.
Honoraires charge vendeur. (gedeon_6727_32275174)
- Type de bien : Appartement
- DPE : C - 91 à 150 kWh/².an
- GES : A -< 6 kg eq CO2/².an
- Surface : 69 m²
- Localisation : France - ile-de-france - Val de Marne
- Ville : Arcueil
- Code postal : 94110
- Annonce créée le 11/12/2025





