Vente Appartement 72610, Arçonnay france 344 600 €
1 / 5
Descriptif du bien
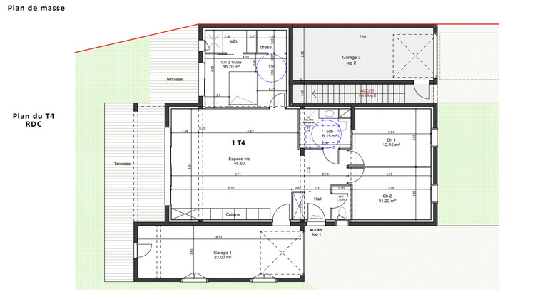
À vendre Appartement neuf 4 pièces en rez-de-chaussée avec garage
Venez découvrir ce spacieux appartement de 92,40 m2, offrant confort et praticité dans un cadre moderne.
Espace de vie lumineux : 45,50 m2
Chambre 1 : 12,15 m2
Chambre 2 : 11,20 m2
Suite parentale : 16,70 m2
Salle de bain contemporaine : 5,15 m2
WC séparés : 1,70 m2
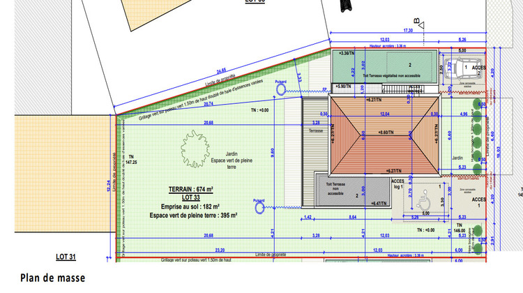
En supplément, bénéficiez d'un garage privatif de 23 m2, directement accessible.
Cet appartement neuf en rez-de-chaussée séduit par ses volumes généreux, sa suite parentale et son grand espace de vie, idéal pour une famille ou un premier achat.
- Type de bien : Appartement
- Surface : 92 m²
- Localisation : France - pays-de-la-loire - Sarthe
- Ville : Arçonnay
- Code postal : 72610
- Annonce créée le 01/10/2025




