Vente Appartement 92160, Antony france 450 000 €
Descriptif du bien
Iad France - Frédéric Auvray vous propose : Antony, ville qui se distingue notamment par sa proximité avec l'aéroport d'Orly, sa liaison avec le RER B vers Paris et le pôle de Massy.
Découvrez cet bel appartement, proche de tous commerces à 2 minutes à pied (Pharmacie, Franprix, boulangerie, brasserie, poste. )
Niché au 1er étage d'un immeuble de standing de 4 niveaux, cet appartement de 4 pièces offre un cadre de vie moderne, confortable et sécurisé. Construit en 1990, il bénéficie d'une très bonne condition générale d'isolation.
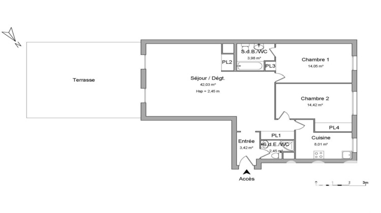
La surface totale de 89 m² est optimisée pour offrir un espace de vie lumineux et fonctionnel de sa pièce principale de 42 m² et d'une terrasse de 40 m² offrant un espace extérieur agréable pour se détendre en toute tranquillité.
L'appartement se compose de 2 chambres spacieuses, possibilité d'en faire une 3 ème (ancien F4 transformé en F3 ), une salle de bain, un WC séparé, une salle d'eau, une cuisine entièrement équipée et aménagée.
Les équipements de confort et de sécurité sont de haute qualité : fibre optique, ascenseur, interphone, résidence sécurisée avec digicode, porte blindée.
L'exposition est idéale, orientée à l'est et au sud pour profiter d'une belle luminosité tout au long de la journée.
Parmi les annexes, vous disposez d'une place de parking, possibilité d'acquérir une 2 ème place.
Ne ratez pas l'occasion de devenir propriétaire de ce joyau immobilier à Antony. Planifiez dès maintenant une visite pour découvrir tout le potentiel de cet appartement.
Soyez des plus curieux, appelez dès maintenant votre conseiller immobilier joignable 7 jours / 7 pour toutes questions et prise de rendez-vous.
La presente annonce immobiliere vise 3 lots situés dans une copropriété de 78 lots au total et ne faisant l'objet d'aucune procédure en cours citée à l'article L. 721-1 du code de la construction et de l'habitation. Montant moyen mensuel de charges déclaré par le vendeur : 153¤ par mois (soit 1836 ¤ annuel). Honoraires d'agence à la charge du vendeur.
Information d'affichage énergétique sur ce bien : classe ENERGIE D indice 228 et classe CLIMAT B indice 7. Les informations sur les risques auxquels ce bien est exposé, y compris l'obligation légale de débroussaillement, sont disponibles sur le site Géorisques : http://www.georisques.gouv.fr.
La présente annonce immobilière a été rédigée sous la responsabilité éditoriale de M Frédéric Auvray mandataire indépendant en immobilier (sans détention de fonds), agent commercial de la SAS I@D France immatriculé au RSAC de EVRY sous le numéro 820 192 953, titulaire de la carte de démarchage immobilier pour le compte de la société I@D France SAS.Informations LOI ALUR : Soumis au régime de copropriété. Nombre de lots : 78. Quote part annuelle(moyenne) : 1836 euros. Honoraires charge vendeur. (gedeon_6727_32214790)
- Type de bien : Appartement
- DPE : D - 151 à 230 kWh/².an
- GES : B - 6 à 10 kg eq CO2/².an
- Surface : 89 m²
- Localisation : France - ile-de-france - Hauts de Seine
- Ville : Antony
- Code postal : 92160
- Annonce créée le 16/04/2026


