Vente Appartement 06600, Antibes france 261 000 €
Descriptif du bien
Iad France - Judicaelle Louis (06 28 75 22 94) vous propose : Appartement 2 pièces avec balcon lumineux - Antibes
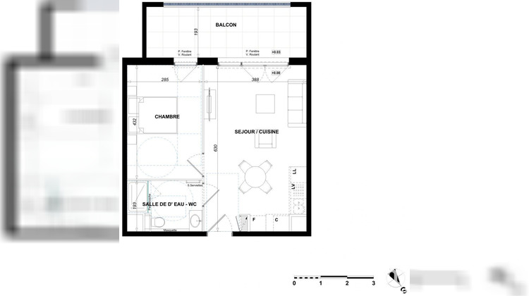
Situé dans un environnement calme et recherché, ce bel appartement 2 pièces de 40,6 m² environ au 1 ? étage allie confort, modernité et praticité. Son balcon de 7,4 m² environ, orienté Nord-Est, offre un agréable espace extérieur idéal pour profiter du climat doux d'Antibes.
? Un intérieur bien pensé
oSéjour / cuisine de 23,25 m² environ, lumineux et ouvert sur le balcon, idéal pour les moments de détente ou de convivialité.
oChambre spacieuse de 12,3 m² environ avec possibilité de rangements intégrés.
oSalle d'eau avec WC de 5,05 m² environ, moderne et fonctionnelle.
Les volumes sont parfaitement équilibrés et les finitions soignées garantissent un confort durable.
? Un extérieur agréable et fonctionnel
Le balcon de 7,4 m² environ permet d'installer aisément un coin repas ou un espace lounge. Sa position offre une atmosphère paisible et une belle luminosité tout au long de la journée.
? Confort et prestations
oStationnement privatif en sous-sol inclus
oRésidence sécurisée et moderne
oChauffage électrique individuel, simple et économe
? Rentabilité et atouts financiers
oPrix de vente : 272 000 ¤
oLoyer de marché estimé : 725 ¤ / mois
oRentabilité brute estimée : 3,19 %
oFrais de notaire à la charge du vendeur
Un excellent rapport surface / prix / rentabilité pour un bien à fort potentiel locatif et patrimonial dans un secteur à la demande constante.
? Idéal pour :
oUn investissement locatif sûr et pérenne
oUne résidence principale moderne et fonctionnelle
oUn pied-à-terre lumineux sur la Côte d'Azur
________________________________________
? Un bien rare sur Antibes, combinant belle surface habitable, extérieur confortable, stationnement privatif et rentabilité solide.
Contactez-nous dès aujourd'hui pour plus d'informations ou pour planifier une visite personnalisée.
Honoraires d'agence à la charge du vendeur. Bien non soumis au DPE. Les informations sur les risques auxquels ce bien est exposé sont disponibles sur le site Géorisques : www.georisques.gouv.fr. La présente annonce immobilière a été rédigée sous la responsabilité éditoriale de Mlle Judicaelle Louis EI (ID 92421), mandataire indépendant en immobilier (sans détention de fonds), agent commercial de la SAS I@D France immatriculé au RSAC de DRAGUIGNAN sous le numéro 811245687, titulaire de la carte de démarchage immobilier pour le compte de la société I@D France SAS.
Retrouvez tous nos biens sur notre site internet. www.iadfrance.fr.
Informations LOI ALUR :
Honoraires charge vendeur. (gedeon_6727_32055445)
- Type de bien : Appartement
- Surface : 41 m²
- Localisation : France - provence-alpes-cote-d-azur - Alpes Maritimes
- Ville : Antibes
- Code postal : 06600
- Annonce mise à jour le 12/02/2026




