Vente Appartement 06600, Antibes france 267 000 €
Descriptif du bien
Iad France - Judicaelle Louis (06 28 75 22 94) vous propose : 2 pièces lumineux avec balcon et parking - Antibes (06600)
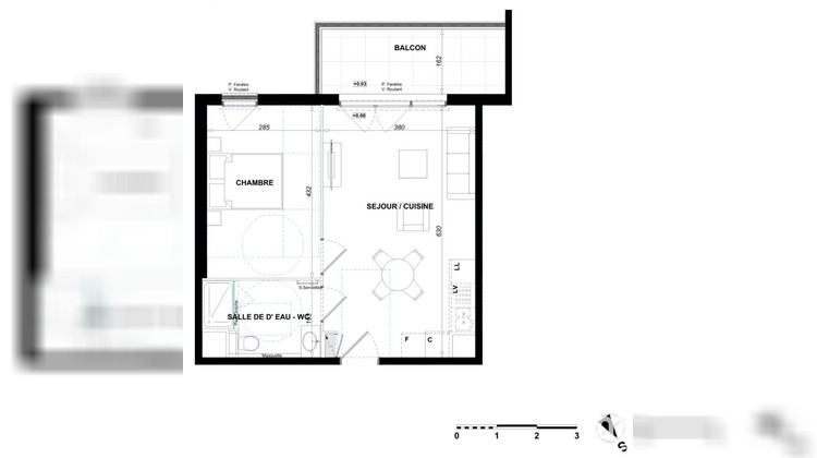
Situé dans un secteur résidentiel recherché d'Antibes, cet agréable appartement de 2 pièces au 2 ? étage offre un cadre de vie moderne et fonctionnel, à proximité immédiate des commerces, écoles et transports.
D'une surface habitable de 40,6 m² environ, il se compose d'un vaste séjour-cuisine de 23,25 m² environ, d'une chambre confortable de 12,30 m² environ et d'une salle d'eau avec WC de 5,05 m² environ.
L'ensemble est prolongé par un balcon de 7,4 m² environ, idéal pour profiter de la douceur du climat antibois.
L'appartement bénéficie d'une orientation nord-est, d'un chauffage électrique individuel et inclut une place de parking privative en sous-sol.
________________________________________
? Données financières
oPrix de vente : 277 000 ¤
oFrais de notaire à la charge du vendeur
oSurface habitable : 40,6 m² environ
oSurface extérieure : 7,4 m² environ (balcon)
oStationnement : 1 place de parking privative en sous-sol
________________________________________
? Rentabilité locative
Avec un loyer de marché estimé à environ 725 ¤ par mois, ce bien présente une rentabilité brute d'environ 3,4 %.
Sa configuration moderne et son emplacement attractif -- entre le centre-ville d'Antibes et Sophia-Antipolis -- en font un placement sûr et pérenne, adapté aussi bien à la location longue durée qu'à un usage en résidence principale.
________________________________________
? Ce que l'on aime
oSéjour spacieux de plus de 23 m² environ
oChambre confortable de 12 m² environ
oBalcon agréable et sans vis-à-vis
oParking inclus dans le prix
oFrais de notaire réduits à la charge du vendeur
oIdéal pour investisseur ou jeune couple primo-accédant
Honoraires d'agence à la charge du vendeur. Bien non soumis au DPE. Les informations sur les risques auxquels ce bien est exposé sont disponibles sur le site Géorisques : www.georisques.gouv.fr. La présente annonce immobilière a été rédigée sous la responsabilité éditoriale de Mlle Judicaelle Louis EI (ID 92421), mandataire indépendant en immobilier (sans détention de fonds), agent commercial de la SAS I@D France immatriculé au RSAC de DRAGUIGNAN sous le numéro 811245687, titulaire de la carte de démarchage immobilier pour le compte de la société I@D France SAS.
Retrouvez tous nos biens sur notre site internet. www.iadfrance.fr.
Informations LOI ALUR :
Honoraires charge vendeur. (gedeon_6727_32055425)
- Type de bien : Appartement
- Surface : 41 m²
- Localisation : France - provence-alpes-cote-d-azur - Alpes Maritimes
- Ville : Antibes
- Code postal : 06600
- Annonce mise à jour le 12/02/2026





