Vente Appartement 06600, Antibes france 269 000 €
Descriptif du bien
Iad France - Judicaelle Louis (06 28 75 22 94) vous propose : Appartement 2 pièces avec balcon et parking - Antibes (06600)
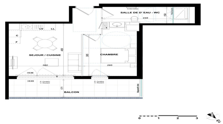
Situé sur les hauteurs d'Antibes, à proximité immédiate des commerces, écoles et transports, ce charmant deux-pièces de 40,25 m² environ au 2 ? étage offre un cadre de vie lumineux et calme, idéal pour un premier achat ou un investissement locatif.
L'espace intérieur se compose d'un séjour-cuisine spacieux de 21,4 m² environ, ouvrant sur un balcon de 11,3 m² environ exposé sud-ouest, parfait pour profiter du soleil en toute saison.
La chambre de 11,85 m² environ bénéficie d'une belle luminosité et de rangements optimisés.
Une salle d'eau avec WC complète ce bien fonctionnel et bien agencé.
Le confort est assuré par un chauffage électrique individuel et un parking privatif en sous-sol inclus dans le prix.
? Prix de vente : 279 000 ¤ (frais de notaire à la charge du vendeur)
? Surface habitable : 40,25 m² environ
? Surface extérieure : 11,3 m² environ (balcon)
? Stationnement : 1 place de parking privative
________________________________________
? Un placement locatif attractif
Ce type de bien, recherché sur le marché antibois, offre un loyer potentiel estimé autour de 730 ¤ par mois, soit une rentabilité brute avoisinant 3,4 %, sans compter la valorisation naturelle du secteur.
L'adresse, à proximité du centre et des axes menant à Sophia-Antipolis, en fait un emplacement idéal pour une clientèle de jeunes actifs ou d'étudiants.
________________________________________
? Les points forts
oExposition sud-ouest très agréable
oBel espace de vie de plus de 21 m² environ
oBalcon de 11 m² environ sans vis-à-vis
oParking inclus
oFrais de notaire réduits à la charge du vendeur
oIdéal investisseur ou résidence principale
Honoraires d'agence à la charge du vendeur. Bien non soumis au DPE. Les informations sur les risques auxquels ce bien est exposé sont disponibles sur le site Géorisques : www.georisques.gouv.fr. La présente annonce immobilière a été rédigée sous la responsabilité éditoriale de Mlle Judicaelle Louis EI (ID 92421), mandataire indépendant en immobilier (sans détention de fonds), agent commercial de la SAS I@D France immatriculé au RSAC de DRAGUIGNAN sous le numéro 811245687, titulaire de la carte de démarchage immobilier pour le compte de la société I@D France SAS.
Retrouvez tous nos biens sur notre site internet. www.iadfrance.fr.
Informations LOI ALUR :
Honoraires charge vendeur. (gedeon_6727_32055423)
- Type de bien : Appartement
- Surface : 40 m²
- Localisation : France - provence-alpes-cote-d-azur - Alpes Maritimes
- Ville : Antibes
- Code postal : 06600
- Annonce mise à jour le 12/02/2026




