Vente Appartement 06600, Antibes france 285 000 €
Descriptif du bien
Iad France - Judicaelle Louis (06 28 75 22 94) vous propose : Appartement 2 pièces avec grand balcon - Antibes
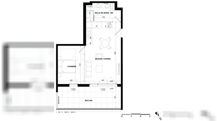
Situé au cOEur d'Antibes, cet appartement de 43,05 m² environ au 1er étage offre un cadre de vie agréable alliant confort et praticité.
Intérieur optimisé :
oSéjour / cuisine lumineux de 24,85 m² environ
oChambre spacieuse de 11,75 m² environ
oSalle de bains avec WC intégré
Extérieur :
oBalcon de 15,6 m² environ exposé Sud-Ouest, parfait pour profiter du climat azuréen
Atouts :
oRésidence calme et sécurisée
oParking privatif inclus
oCommerces, écoles et transports accessibles à pied
oConnexion rapide vers Sophia-Antipolis et les grands axes routiers
Prix : 295 000 ¤ - Frais de notaire à la charge du vendeur
Un bien idéal pour une résidence principale, un pied-à-terre sur la Côte d'Azur ou un investissement locatif. Contactez-nous dès maintenant pour plus d'informations ou une visite personnalisée.
Honoraires d'agence à la charge du vendeur. Bien non soumis au DPE. Les informations sur les risques auxquels ce bien est exposé sont disponibles sur le site Géorisques : www.georisques.gouv.fr. La présente annonce immobilière a été rédigée sous la responsabilité éditoriale de Mlle Judicaelle Louis EI (ID 92421), mandataire indépendant en immobilier (sans détention de fonds), agent commercial de la SAS I@D France immatriculé au RSAC de DRAGUIGNAN sous le numéro 811245687, titulaire de la carte de démarchage immobilier pour le compte de la société I@D France SAS.
Retrouvez tous nos biens sur notre site internet. www.iadfrance.fr.
Informations LOI ALUR :
Honoraires charge vendeur. (gedeon_6727_32055422)
- Type de bien : Appartement
- Surface : 43 m²
- Localisation : France - provence-alpes-cote-d-azur - Alpes Maritimes
- Ville : Antibes
- Code postal : 06600
- Annonce mise à jour le 12/02/2026



