Vente Appartement 69480, ANSE france 395 000 €
1 / 6
Descriptif du bien
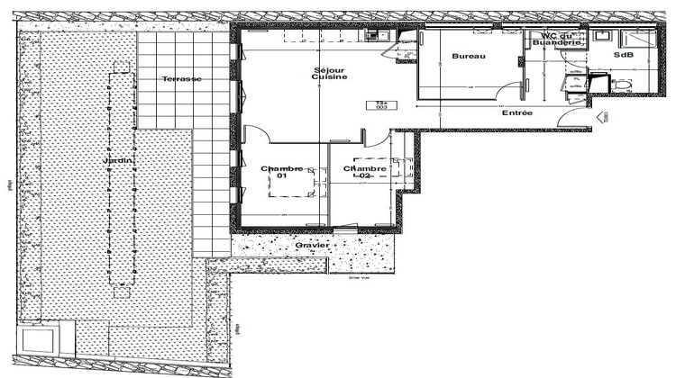
Au coeur d'Anse, une commune prisée entre vignes et pierres dorées, à moins de 30 min de Lyon et 10 min de Villefranche-sur-Saône. Je vous propose de visiter ce très beau T4 de 83m² avec sa terrasse de 21m² et son jardin de 91m² dans une résidence de standing aux dernières normes comprenant : Une entrée, un séjour avec cuisine ouverte donnant sur la terrasse, trois chambres, une salle de bain, une buanderie et un WC. Résidence contemporaine aux très belles prestations intérieures Bâtiment basse consommation, faibles charges Copropriété de 8 lots - dont 8 lots habitation. (Pas de procédure en cours). Charges annuelles : 1400 euros.
- Type de bien : Appartement
- DPE : B - 51 à 90 kWh/².an
- GES : B - 6 à 10 kg eq CO2/².an
- Surface : 83 m²
- Localisation : France - Auvergne-Rhône-Alpes - Rhône
- Ville : ANSE
- Code postal : 69480
- Annonce créée le 03/03/2026





