Vente Appartement 59112, Annoeullin france 180 500 €
Descriptif du bien
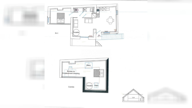
L'agence immobilière ACQUERIM CARVIN, vous propose à la vente cet appartement T3 de 62m², alliant charme d'antan et confort contemporain, avec terrasse privative en plein centre ville d'Annoeullin pour résidence principale ou déficit foncier.
L'appartement est composé comme il suit :
Pièce à vivre de 31m², Salle d'eau, 2 chambre de 10.05m² et 14.5m² et toilettes.
Une terrasse privative de 8m² pour profiter des beaux jours
Chaque détail a été pensé pour votre confort au quotidien.
La superficie utile de ce logement est de 77.5m²
Possibilité d'achat d'une place de parking à proximité.
Faibles charges de copropriété.
Petite copropriété de 5 appartements
Découvrez un écrin de vie moderne et lumineux au coeur d'une ville en pleine effervescence
Les atouts qui font la différence
? Rénovation complète en 2026 pour un confort optimal
? Isolation RT 2020 pour un habitat économe et écologique
? Ouvertures en aluminium double vitrage pour une isolation phonique et thermique
? Terrasse privative de 8m² pour profiter des beaux jours
? Cuisine aménagée et fonctionnelle
? Deux chambres spacieuses dont une avec dressing intégré
? Salle d'eau et WC indépendants pour un confort optimal
? Vue imprenable sur la ville
? Parties communes rénovées et entretenues avec soin
Un cadre de vie unique à deux pas de tout
Que vous soyez un amateur de vie urbaine ou un passionné de tranquillité, cet appartement saura vous séduire. À proximité immédiate des commodités essentielles, vous profiterez d'un accès facile aux commerces, aux transports en commun, aux écoles et aux parcs. En moins de 5 minutes à pied, vous trouverez des supermarchés, des boulangeries, des cafés ainsi que des espaces verts pour des balades apaisantes. Les transports en commun sont également à quelques minutes, vous permettant de vous déplacer facilement dans la ville et ses alentours. Plusieurs parcs et espaces de détente sont également accessibles en moins de 10 minutes, parfaits pour une pause nature en plein coeur de l'agglomération.
Ne laissez pas passer cette opportunité unique !
Nos experts se feront un plaisir de vous faire découvrir ce cadre de vie exceptionnel et de vous accompagner dans votre projet d'achat. N'hésitez pas à contacter Christophe MAKUCH pour obtenir plus de renseignements.
? Appelez-nous au 03 21 18 39 39 ou envoyez-nous un message via notre formulaire en ligne. Nous sommes à votre disposition pour répondre à toutes vos questions et organiser une visite à votre convenance.
'Un appartement où il fait bon vivre, pensé pour votre bonheur au quotidien.'
ACQUERIM CARVIN - Votre partenaire immobilier de confiance
L'agence immobilière ACQUERIM les Hauts de France fait des Estimations Immobilières sur Carvin(62220), Annay sous Lens (62880), Estevelles (62880), Pont à Vendin(62880), Vendin le Vieil (62880), Wingles (62410), Meurchin (62410), Annoeullin (59112), Carnin (59112), Camphin en Carembault (59133) et Phalempin (59133)
Honoraires à la charge du vendeur. Classe énergie C, Classe climat A Montant estimé des dépenses annuelles d'énergie pour un usage standard : entre 650.00 et 930.00 sur les années 2021, 2022 et 2023 (abonnements compris). Les informations sur les risques auxquels ce bien est exposé sont disponibles sur le site Géorisques : georisques.gouv.fr.
Votre conseiller ACQUERIM CARVIN : Directeur - Christoph...
- Type de bien : Appartement
- DPE : C - 91 à 150 kWh/².an
- GES : A -< 6 kg eq CO2/².an
- Surface : 62 m²
- Localisation : France - Hauts-de-France - Nord
- Ville : Annoeullin
- Code postal : 59112
- Annonce créée le 03/04/2026



