Vente Appartement 49100, ANGERS france 339 500 €
1 / 9
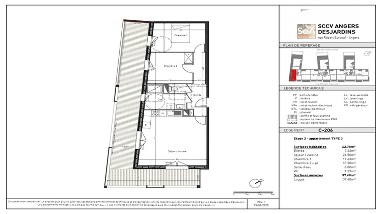
Descriptif du bien
Découvrez cet appartement neuf exposé sud au deuxième étage offrant de beaux volumes et une conception moderne. Il se compose d'une spacieuse pièce de vie , de deux chambres, d'une salle d'eau, d'une terrasse de 37m2. Une place de parking, une cave, un local vélo complètent le bien. Situation idéale à Angers, proche des transports, commerces et services. Parfait pour une famille ou un investissement ! *frais de notaire réduits.
- Type de bien : Appartement
- DPE : B - 51 à 90 kWh/².an
- GES : B - 6 à 10 kg eq CO2/².an
- Surface : 62 m²
- Localisation : France - pays-de-la-loire - Maine et Loire
- Ville : ANGERS
- Code postal : 49100
- Annonce créée le 17/02/2026








