Vente Appartement 49100, ANGERS france 990 000 €
Descriptif du bien
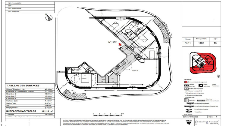
ANGERS: La résidence bénéficie d'un emplacement privilégié en coeur de ville, à quelques pas des rues commerçantes du centre-ville, des cinémas, de la patinoire, du CHU, du Jardin des Plantes et de la cathédrale. (Tramway au pied de la résidence.) A VENDRE magnifique appartement Type 5 Neuf de 122,26 m² situé au 11ème et dernier étage et bénéficiant d'une triple exposition E/S/0 dans cette résidence de standing comprenant une entrée, une pièce de vie de 49,80m² ouverte sur une terrasse de 71,62m² , une suite parentale avec dressing et salle d'eau de 25,42m², trois chambres de 9.68m² à 10,69m² une seconde salle de bains de 7,48m², deux WC. Une cave et deux places de parking privatives complètent cet appartement d'exception. Ascenseur, norme PMR , (personne à mobilité réduite), système de chauffage avec rafraichissement, très belles prestations. ( Disponible de suite -Livraison Immédiate) REF: 29308-ARB1102-3 Prix: 990 000 euros TTC Prix direct promoteur Frais de notaire réduits à 2,5% Informations auprès de Gwénaëlle GROU au 07 72 41 01 29 spécialiste immobilier Neuf Centre-ville d'Angers, quartiers de la Gare, la Madeleine, Doutre, Lafayette, Visitation, place du lycée, Quinconce, Saint Léonard, Jeanne d'Arc et du Lac de Maine, Belle-beille, Avrillé, Saint Barthélemy ... pour trouver votre solution immobilière en Résidence principale ou secondaire, LMNP, Location, Gestion immobilière. "Les informations sur les risques auxquels ce bien est exposé sont disponibles sur le site Géorisques : www.georisques.gouv.fr" Copropriété de 29 lots - dont 29 lots habitation.(Pas de procédure en cours).
- Type de bien : Appartement
- Surface : 122 m²
- Localisation : France - pays-de-la-loire - Maine et Loire
- Ville : ANGERS
- Code postal : 49100
- Annonce mise à jour le 04/11/2025









