Vente Appartement 49000, Angers france 212 500 €
Descriptif du bien
Iad France - Manon Coudray vous propose : À découvrir - Appartement T3 Place Bichon, Angers. Libre de toute occupation en juin 2026
Idéalement situé Place Bichon à Angers, à proximité immédiate des commerces, transports et commodités, cet appartement saura vous séduire par son emplacement et son charme.
Situé au premier étage d'un immeuble calme, il est actuellement loué meublé dans le cadre d'un bail d'un an.
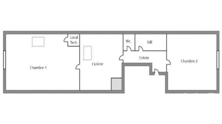
Il se compose d'un palier desservant :
un espace cuisine ouvert sur la salle à manger, salon.
Deux chambres avec rangements et une salle d'eau et wc.
Pour plus d'informations, n'hésitez pas à me contacter.
La presente annonce immobiliere vise 1 lot situé dans une copropriété de 3 lots au total et ne faisant l'objet d'aucune procédure en cours citée à l'article L. 721-1 du code de la construction et de l'habitation. Montant moyen mensuel de charges déclaré par le vendeur : 30¤ par mois (soit 360 ¤ annuel). Honoraires d'agence à la charge du vendeur.
Information d'affichage énergétique sur ce bien : classe ENERGIE D indice 244 et classe CLIMAT B indice 9. Les informations sur les risques auxquels ce bien est exposé, y compris l'obligation légale de débroussaillement, sont disponibles sur le site Géorisques : http://www.georisques.gouv.fr.
La présente annonce immobilière a été rédigée sous la responsabilité éditoriale de Mme Manon Coudray mandataire indépendant en immobilier (sans détention de fonds), agent commercial de la SAS I@D France immatriculé au RSAC de ANGERS sous le numéro 838406338, titulaire de la carte de démarchage immobilier pour le compte de la société I@D France SAS.Informations LOI ALUR : Soumis au régime de copropriété. Nombre de lots : 3. Quote part annuelle(moyenne) : 360 euros. Honoraires charge vendeur. (gedeon_6727_32139563)
- Type de bien : Appartement
- DPE : D - 151 à 230 kWh/².an
- GES : B - 6 à 10 kg eq CO2/².an
- Surface : 54 m²
- Localisation : France - pays-de-la-loire - Maine et Loire
- Ville : Angers
- Code postal : 49000
- Annonce créée le 16/04/2026





