Vente Appartement 49000, Angers france 249 900 €
Descriptif du bien
ELIGIBLE AU PRET A TAUX ZERO
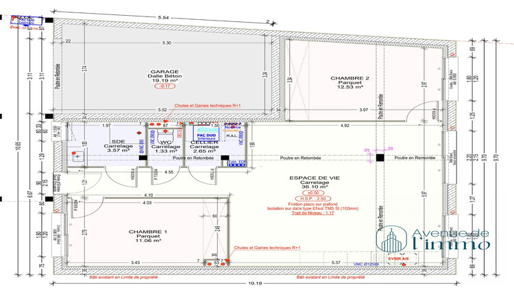
Appartement neuf en cours de construction sur ANGERS (49) à proximité immédiate des commerces et des commodités (tramway, bus, jardin des Plantes...)
Dans un ensemble immobilier contenant seulement trois lots d'habitation avec des entrées indépendantes, cet appartement sera situé au RDC, bénéficiant d'un garage privatif et d'une terrasse d'environ 20m².
Il sera composer d'une belle pièce de vie d'environ 36m², deux chambres, une salle d'eau, WC et cellier.
Construction aux normes RE2020.
Honoraires inclus de 4.13% TTC à la charge de l'acquéreur. Prix hors honoraires 240 000 . DPE en cours. Les informations sur les risques auxquels ce bien est exposé sont disponibles sur le site Géorisques : georisques.gouv.fr.
- Type de bien : Appartement
- Surface : 67 m²
- Localisation : France - pays-de-la-loire - Maine et Loire
- Ville : Angers
- Code postal : 49000
- Annonce créée le 13/02/2026




