Vente Appartement 49000, Angers france 182 000 €
Descriptif du bien
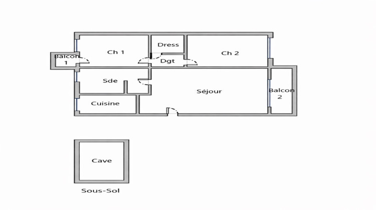
Laissez-vous séduire par ce bel appartement de 67 m², où confort et luminosité sont au rendez-vous. Dès l'entrée, vous découvrirez un vaste salon-séjour baigné de lumière, prolongé par un balcon / terrasse idéal pour profiter de moments de détente en extérieur. La cuisine, entièrement aménagée, s'intègre avec élégance à cet espace de vie chaleureux et convivial. L'espace nuit se compose de deux chambres, d'une salle d'eau moderne, de toilettes indépendantes, ainsi que d'un cagibi très fonctionnel, parfait pour optimiser le rangement au quotidien. Une cave vient compléter ce bien, offrant un espace de stockage appréciable. Aucun travaux à prévoir : l'appartement est prêt à accueillir ses futurs occupants dans les meilleures conditions. À noter également que le chauffage est compris dans les charges. Idéalement situé, il bénéficie d'un environnement pratique et recherché, à proximité immédiate des commerces, services et parfaitement desservi par les transports en commun (bus et tram).Le bien comprend 3 lots, et il est situé dans une copropriété de 361 lots (les charges courantes annuelles moyennes de copropriété sont de 1900 ¤ et le syndicat des copropriétaires ne fait pas l'objet d'une procédure citée à l'article L. 721-1 du code de la construction et de l'habitation).Les informations sur les risques auxquels ce bien est exposé sont disponibles sur le site Géorisques : www.georisques.gouv.frPrix de vente : 182 000 ¤Honoraires charge vendeurContactez votre conseiller SAFTI : Quentin LE CAM, Tél. : 06 84 79 60 90, E-mail : quentin.lecam@safti.fr - EI - Agent commercial immatriculé au RSAC de ANGERS sous le numéro 835 406 059.Informations LOI ALUR : Soumis au régime de copropriété. Nombre de lots : 361. Quote part annuelle(moyenne) : 1900 euros. Honoraires charge vendeur. (gedeon_26118_32513482)
- Type de bien : Appartement
- DPE : D - 151 à 230 kWh/².an
- GES : D - 21 à 35 kg eq CO2/².an
- Surface : 68 m²
- Localisation : France - pays-de-la-loire - Maine et Loire
- Ville : Angers
- Code postal : 49000
- Annonce mise à jour le 05/03/2026





