Vente Appartement 73100, AIX LES BAINS france 542 000 €
Descriptif du bien
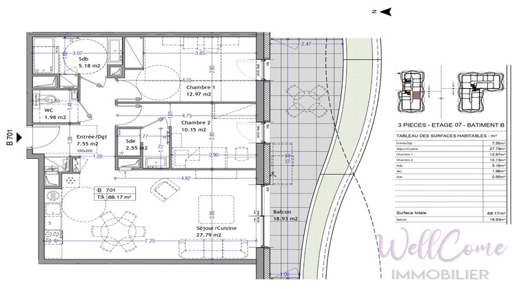
Appartement T3 de 68 m² en VEFA au 7ème étage SUD + Box inclus – Résidence « Les Nouveaux Thermes » À Aix-les-Bains, en cœur de ville au sein de la prestigieuse résidence « Les Nouveaux Thermes » découvrez cet appartement 3 pièces de 68,17m² côté Sud au 7ème étage sur 13. Description de l’appartement T3 : -Entrée/Dgt : 7,55m² -Séjour/Cuisine : 27,79m² -1 Chambre avec salle d'eau : 12,70m² -1 Chambre : 10,15m² -Salle de bain : 5,18m² -WC : 1,98m² L’appartement s’ouvre sur un balcon végétalisé de 18,93m² côté Sud. Vendu avec 1 box au sous-sol sécurisé. Présence de locaux vélos et poussettes sécurisés. Prestations haut de gamme : Plancher chauffant et rafraîchissant par géothermie. Menuiseries aluminium double vitrage. Brise-soleil orientables (BSO) et volets roulants électriques. Possibilité de personnalisation des finitions intérieurs. Une résidence contemporaine à haute performance environnementale : Façades et toitures végétalisées, Récupération des eaux pluviales, Chauffage et rafraîchissement par géothermie. Contactez votre agence WellCome Immobilier à Aix-les-Bains pour réserver cet appartement d’exception parmi les lots disponibles ! Livraison prévue : 4ème Trimestre 2028 Frais de notaire réduits Programme certifié RE2020 seuil 2022 NF Habitat HQE Surface CARREZ : 68.17 m²
- Type de bien : Appartement
- Surface : 68 m²
- Localisation : France - Auvergne-Rhône-Alpes - Savoie
- Ville : AIX LES BAINS
- Code postal : 73100
- Annonce créée le 23/02/2026





