Neuf Divers 14120, Mondeville france 176 000 €
Descriptif du bien
TH2CT Grand Ouest propose à la vente: Plateaux de bureaux neufs avec parkings privatifs Mondeville / Caen
Installez vos bureaux dans un environnement calme, stratégique et valorisant à seulement 5 minutes du centre-ville de Caen.
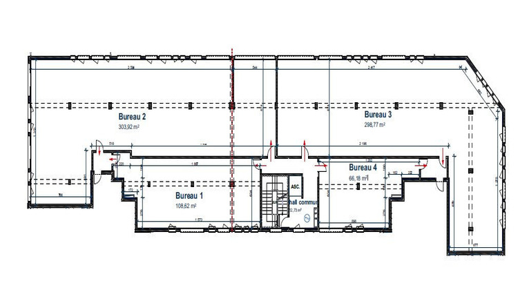
Au coeur d'un programme neuf à l'architecture contemporaine, vous trouverez un plateau de bureau en R+1 de 815 m², divisible en 4 bureaux avec leurs places de parking:
- 66 m² + 1 place de parking
- 109 m² + 2 places de parking
- 299 m² + 4 places de parking
-304 m² +4 places de parking
Les bureaux sont livrés bruts de béton, fluides en attente.
Emplacement : Mondeville, secteur résidentiel qualitatif, ZAC Les Terrasses de l'Orne
Idéal pour sièges de PME, professions libérales structurées, entreprises de services, coworking de quartier, formation
Livraison : Septembre 2026
Conditions financière de la vente:
Prix net vendeur: 165 000 HT
Honoraires agence : 11 000 HT charge acquéreur
? Contact commercialisation :Matthieu PARISOT mp@th2ct.com 06 20 88 15 46
Honoraires inclus de 6.67% à la charge de l'acquéreur. Prix hors honoraires 165 000 HT. Dans une copropriété de 2 lots. Aucune procédure n'est en cours. Non soumis au DPE. Les informations sur les risques auxquels ce bien est exposé sont disponibles sur le site Géorisques : georisques.gouv.fr.
Votre conseiller TH2 C&T : Matthieu PARISOT
Agent commercial (Entreprise individuelle)





