Neuf Appartement 34200, SETE france 239 000 €
1 / 4
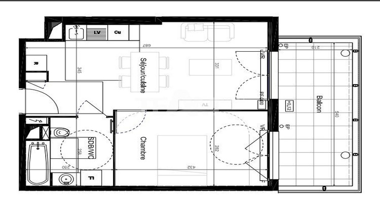
Descriptif du bien
Appartement type 2 avec parking !! 1 belle chambres de 12.20m2 avec séjour /cuisine de 22.20m2 et grande terrasse 14m2. A proximité des écoles, commerces et de la plage du LIDO. Son architecture de standing avec ses lignes épurées et aérés rendent cet Résidence "LA SINGULIERE " exceptionnelle . Eligible PINEL ,PTZ



