Neuf Appartement 91700, Sainte-Geneviève-des-Bois france 252 700 €
Descriptif du bien
Iad France - Stéphane Gervasi (06 80 65 75 65) vous propose : *Programme NEUF * Avenue Gabriel Péri, Sur le secteur 'centre ville' de Sainte Geneviève des Bois proche de toutes les commodités, dans une petite Résidence de Standing de 9 appartements aux normes RT2020 et aux prestations soignées qui sera livrée au premier Trimestre 2027.
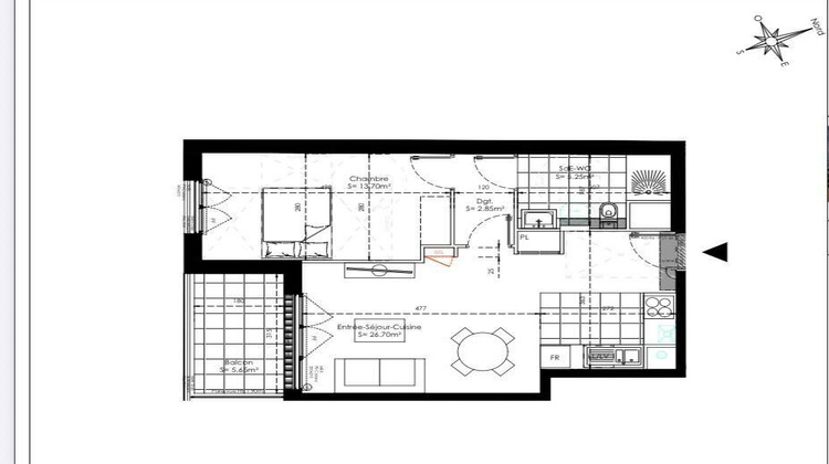
Un appartement de type F2 de 48,50 m² environ habitable composé d'une pièce de vie de 27 m² environ avec coin cuisine, d'un couloir desservant une salle de douche équipée avec WC et une grande chambre de 13,70 m² environ. Terrasse de 5,65 m² environ.
+ Chauffage / eau chaude individuels au Gaz + Faibles Charges + Frais de notaire réduits et Prêt à taux zéro +
D'autres lots disponibles.
Contacter moi pour plus de détail.
Honoraires d'agence à la charge du vendeur. Bien non soumis au DPE. Les informations sur les risques auxquels ce bien est exposé sont disponibles sur le site Géorisques : www.georisques.gouv.fr. La présente annonce immobilière a été rédigée sous la responsabilité éditoriale de M. Stéphane Gervasi EI (ID 16918), mandataire indépendant en immobilier (sans détention de fonds), agent commercial de la SAS I@D France immatriculé au RSAC de EVRY sous le numéro 511705873, titulaire de la carte de démarchage immobilier pour le compte de la société I@D France SAS.
Retrouvez tous nos biens sur notre site internet. www.iadfrance.fr.Informations LOI ALUR : Honoraires charge vendeur. (gedeon_6727_32463745)
- Type de bien : Appartement
- Surface : 48 m²
- Localisation : France - ile-de-france - Essonne
- Ville : Sainte-Geneviève-des-Bois
- Code postal : 91700
- Annonce créée le 16/04/2026

