Neuf Appartement 44660, ROUGE france 70 200 €
Descriptif du bien
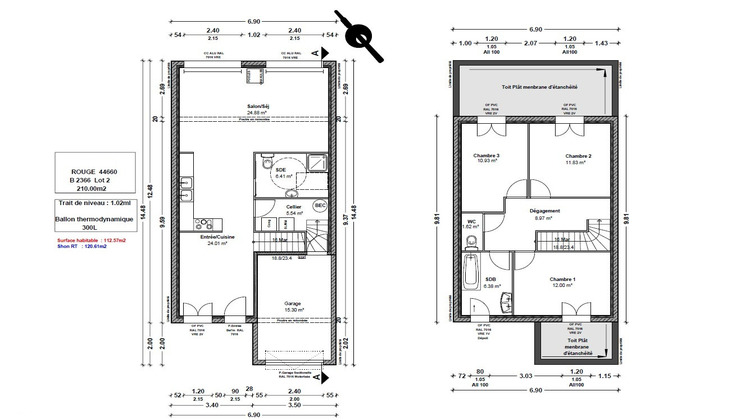
En exclusivité chez Saint Nicolas Immobilier ! Situé dans le bourg de Rougé, à 10 min de Châteaubriant. Venez découvrir ce projet en cours de construction d'une maison de 107 m². Elle comprendra : Au rez-de-chaussée : une entrée sur cuisine ouverte, un salon séjour avec deux grandes baies vitrée pour accéder au jardin, un cellier, une salle d'eau avec W.C. (Possibilité de créer une chambre de plain pied) A l'étage : un dégagement desservant trois chambres, une salle de bains et W.C indépendant. Le tout sur une parcelle de terrain d'environ 205 m² avec garage attenant. Les plans intérieurs et prestations sont entièrement modifiables. L'ensemble du reste des travaux sera à votre charge, cela comprend : Menuiserie, charpente, couverture, placo / isolation, sanitaires, chauffage, électricité, test perméabilité, chappe / carrelage / faïence, sols des chambres, cuisine, aménagements extérieurs DPE : non soumis Prix = 70 200 euros H.A.I (Honoraires d'Agence Inclus) à la charge de l'acquéreur Prix du bien hors honoraires = 65 000 euros net vendeur Réf. : 4950JD (8.00 % honoraires TTC à la charge de l'acquéreur.)
- Type de bien : Appartement
- Surface : 107 m²
- Localisation : France - pays-de-la-loire - Loire Atlantique
- Ville : ROUGE
- Code postal : 44660
- Annonce créée le 26/08/2025



