Neuf Appartement 29800, LANDERNEAU france 327 900 €
Descriptif du bien
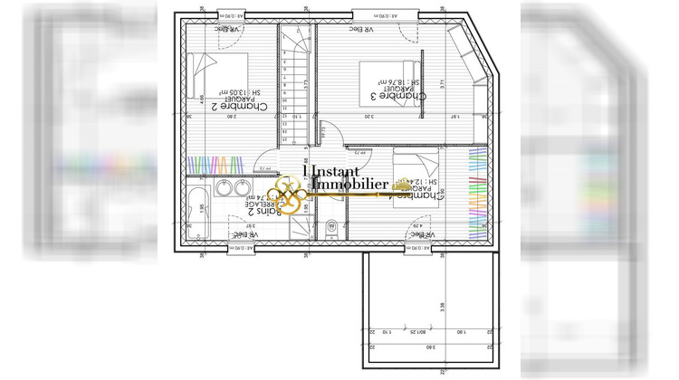
A vendre : Maison neuve 130 m² à Landerneau - Lotissement de la Vallée du Leck** Découvrez cette superbe maison neuve mitoyenne d'un coté , idéalement située dans le Lotissement de la Vallée du Leck à Landerneau. Cette propriété offre un cadre de vie exceptionnel avec toutes les commodités à proximité. **Caractéristiques :** - 4 chambres spacieuses et lumineuses dont une de plein pied - Classe énergétique A pour un confort optimal et des économies d'énergie - 2 salles d'eau modernes et fonctionnelles - cellier - beau salon séjour très lumineux - terrasse et jardin bien exposés - Livraison prévue en mai 2025 - Garantie décennale pour une tranquillité d'esprit - Matériaux de qualité pour une construction durable et esthétique - Proximité des commerces et accès rapide à la voie express Ne manquez pas cette opportunité unique de devenir propriétaire d'une maison neuve dans un environnement paisible et bien desservi. Pour plus d'informations ou pour organiser une visite, n'hésitez pas à nous contacter. Nous serons ravis de vous accompagner dans votre projet immobilier. (4.10 % honoraires TTC à la charge de l'acquéreur.)







