Neuf Appartement 85800, Givrand france 285 000 €
Descriptif du bien
Iad France - Maryse Bonny (07 71 66 73 30) vous propose : Situé à 2 km de l'océan, ce programme neuf bénéficie d'un emplacement stratégique entre littoral et arrière pays Vendéen.
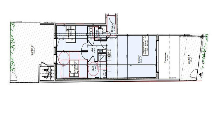
Un appartement traversant, de type T3 offrant deux jardins privatifs, un véritable confort de vie entre lumière, intimité et ouverture sur l'extérieur.
Le logement propose une distribution fonctionnelle:
séjour / cuisine de 32 m² environ, deux chambres, une salle d'eau, cellier, terrasse de 14 m² environ, deux jardins privatifs et d'un local vélo individuel.
La résidence est sécurisée, dispose d'un parking clos avec portail électrique, de deux stationnements privatifs par logement, et respecte les normes RE 2020 et NF Habitat.
Un bien pensé pour durer, tant sur le plan énergétique que patrimonial.
Livraison prévisionnelle : Décembre 2028.
Frais de notaire réduits.
Ce type de bien peut s'inscrire dans une réflexion patrimoniale ou locative, selon votre situation.
Honoraires d'agence à la charge du vendeur. Bien non soumis au DPE. Les informations sur les risques auxquels ce bien est exposé sont disponibles sur le site Géorisques : www.georisques.gouv.fr. La présente annonce immobilière a été rédigée sous la responsabilité éditoriale de Mlle Maryse Bonny EI (ID 86268), mandataire indépendant en immobilier (sans détention de fonds), agent commercial de la SAS I@D France immatriculé au RSAC de LA ROCHE SUR YON sous le numéro 939986485, titulaire de la carte de démarchage immobilier pour le compte de la société I@D France SAS.
Retrouvez tous nos biens sur notre site internet. www.iadfrance.fr.
Informations LOI ALUR :
Honoraires charge vendeur. (gedeon_6727_32514573)
- Type de bien : Appartement
- Surface : 75 m²
- Localisation : France - pays-de-la-loire - Vendée
- Ville : Givrand
- Code postal : 85800
- Annonce créée le 12/02/2026




