Neuf Appartement 74330, EPAGNY france 450 000 €
Descriptif du bien
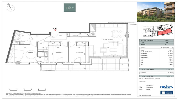
Un appartement idéal, alliant confort, fonctionnalité et cadre de vie agréable. Situé en rez-de-jardin du programme ESSY, à Metz Tessy, découvrez ce charmant T4 de 82m², parfaitement agencé et bénéficiant d'une belle exposition sud. Un appartement fonctionnel et lumineux : - Une pièce de vie agréable ouverte sur un balcon de 18m², idéal pour profiter de beaux jours - 3 chambres confortables - Une salle de bain - Une salle d’eau - Un WC indépendant En annexe : une cave et la possibilité d'acquérir un garage et/ou une place de parking privative Un cadre de vie pratique et recherché, ce bien bénéficie d'un environnement calme tout en restant proche des commodités essentielles. La commune offre de nombreux commerces de proximité (boulangeries, supermarchés, services), ainsi que des établissements scolaires accessibles rapidement. Côté mobilité, Metz Tessy est idéalement sur l'axe Annecy / Genève, avec des solutions de transport facilitant les déplacements quotidiens. Un bien idéal pour un premier achat, un investissement locatif ou un pied-à-terre de qualité. Contactez-nous dès maintenant !
- Type de bien : Appartement
- Surface : 81 m²
- Localisation : France - Auvergne-Rhône-Alpes - Savoie (Haute)
- Ville : EPAGNY
- Code postal : 74330
- Annonce créée le 06/04/2026





