Location Maison 97113, GOURBEYRE france
1 100 € /
Mois
charges incluses
Descriptif du bien
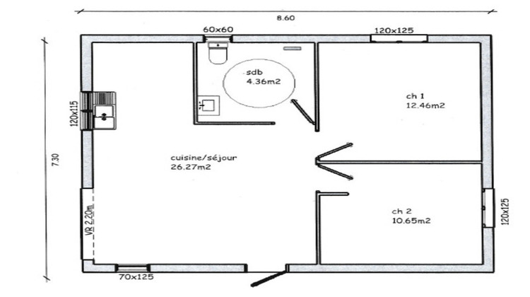
Située à Gourbeyre, à proximité immédiate de la route des Palmistes, cette maison neuve de plain-pied, proposée en location nue (non meublée), offre un cadre de vie calme et agréable, tout en restant facilement accessible. Description du logement : - Séjour et cuisine ouverte aménagée, équipée d'une plaque de cuisson et d'un four, avec emplacements prévus pour lave-vaisselle et machine à laver. - Deux chambres - Une salle d'eau fonctionnelle avec douche, WC et vasque/meuble vasque - Une terrasse Disponibilité immédiate Environnement résidentiel, paisible, verdoyant Bonne ventilation naturelle Conditions locatives Loyer mensuel : 1 100 €/mois Eau et électricité non comprises Dépôt de garantie : 1 100 € (1 mois de loyer sans les charges) Conditions de solvabilité Revenus mensuels minimum du foyer : 3 300 € ou garantie visale acceptée Dossier à fournir : Pièce d'identité Justificatif de domicile ou attestation d'hébergement + CNI de l'hébergeur + justificatif de domicile Dernier avis d'imposition Contrat de travail ou attestation employeur 3 derniers bulletins de salaire Indépendants : 2 derniers bilans, avis d'imposition, attestation du comptable Retraités : notification de pension ou 3 derniers relevés de pension Toutes les photos sont disponibles sur le site Capifrance. Les honoraires sont partagés entre le locataire et le bailleur, les honoraires à la charge du locataire sont de 610,00€, dont 161,47€ pour l'état des lieux. Les informations sur les risques auxquels ce bien est exposé sont disponibles sur le site Géorisques : www. georisques. gouv. fr. Réseau Immobilier CAPIFRANCE - Votre agent commercial (RSAC N°883 718 454 - Greffe de POINTE A PITRE) Johanelle FLANDRINA Entrepreneur Individuel 06 50 05 77 19 - Réf.936241
- Type de bien : Maison
- DPE : A -< 51 kWh/².an
- GES : A -< 6 kg eq CO2/².an
- Surface : 56 m²
- Localisation : France - DOM/TOM - Guadeloupe
- Ville : GOURBEYRE
- Code postal : 97113
- Annonce créée le 24/01/2026





