Location Local commercial 26000, VALENCE france
950 € /
Mois
charges incluses
Descriptif du bien
À LOUER BUREAUX 120 m² VALENCE AVENUE GAMBETTA
Situé sur l'Avenue Gambetta à Valence, ce local à usage de bureaux de 120 m², au 1er étage, offre des volumes fonctionnels et bien agencés, parfaitement adaptés à une activité tertiaire, libérale ou de services.
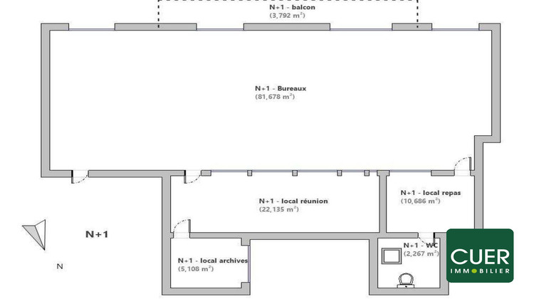
Description du local :
Surface totale : 120 m²
Grand espace bureau lumineux de 81 m²
Salle de réunion de 22 m²
Espace repas
Espace archives
Sanitaires indépendants
Chauffage par pompe à chaleur
Disponible au 1er mars 2026.
Conditions financières :
Loyer mensuel HC : 950
Charges mensuelles : 30
Loyer non soumis à la TVA
Loyer mensuel charges comprises : 980/mois
Dépôt de garantie : 1 900
Honoraires agence : 1 710 HT (15% HT du loyer annuel HC soit 2 052 TTC)
Taxe foncière : à la charge du preneur
Ce local constitue une opportunité idéale pour une entreprise ou un professionnel recherchant un emplacement central, des surfaces bien réparties et un environnement de travail agréable.
? Contactez-nous dès maintenant pour plus d'informations ou pour organiser une visite !
Honoraires de 1 710 HT à la charge du locataire. Provision sur charges 30 /mois, régularisation annuelle. Dépôt de garantie 1 900 . Classe énergie B, Classe climat A. Les informations sur les risques auxquels ce bien est exposé sont disponibles sur le site Géorisques : georisques.gouv.fr.
- Type de bien : Local commercial
- DPE : B - 51 à 90 kWh/².an
- GES : A -< 6 kg eq CO2/².an
- Surface : 120 m²
- Localisation : France - Auvergne-Rhône-Alpes - Drôme
- Ville : VALENCE
- Code postal : 26000
- Disponible le 01/03/2026
- Annonce créée le 27/02/2026





