Location Local commercial 77700, Serris france
5 158 € /
Mois
charges incluses
Descriptif du bien
? À LOUER LOCAL COMMERCIAL RESTAURATION SERRIS (77) EMPLACEMENT PREMIUM
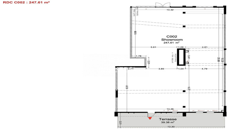
Vous recherchez un emplacement stratégique pour votre showroom ? Ne cherchez plus ! Ce local commercial vous offre une surface intérieure de 247,61 m² avec une terrasse de 39,38 m² (RARE).
? Localisation :
Situé au sein de West Park, Parc International d'Entreprises Val d'Europe, un pôle économique dynamique.
Environnement ultra-connecté : Autoroute A4, RER A, HUB TGV, accès rapide aux aéroports CDG & Orly.
À proximité immédiate du Centre Commercial Val d'Europe, de La Vallée Village et de Disneyland Paris, générant un flux de visiteurs important.
? Caractéristiques du local :
Emplacement au coeur d'un pôle économique et touristique majeur (40 millions de visiteurs/an).
Nombreux services sur place : parkings visiteurs, bornes de recharge électrique, food court, espaces de coworking, etc.
Un cadre verdoyant et moderne, en parfaite harmonie avec les attentes des clients.
Plusieurs activités commerciales ont signé au rez-de-chaussée :Micro-crèche, Pressing, Concept Store, Salon de thé, Plaine de jeux éducative, Salon de beauté, Cabinet de Kinésithérapeutes.
Un premier restaurant offrira la spécialité thai, deux offres en cours de discussion.
? Opportunité à saisir :
Ce local bénéficie d'une excellente visibilité et accessibilité, avec une clientèle diversifiée (habitants, travailleurs, touristes). Idéal pour un opticien, cabinet de santé, notaire, cuisine, menuiserie et autres.
Contactez-nous par message en fournissant votre nom, prénom, email, le concept envisagé. Nous reviendrons vers vous dans les meilleurs délais.
RESEAU BROKERS® est le premier cabinet immobilier d'entreprise structuré en réseau de mandataires. Nous maillons avec notre équipe de 80 Brokers une grande partie du territoire national pour accompagner nos entreprises clientes dans leurs recherches de commerces, bureaux, locaux d'activités, immeubles et fonciers.
www.reseau-brokers.com
Honoraires de 9 285 HT à la charge du locataire. DPE vierge. Les informations sur les risques auxquels ce bien est exposé sont disponibles sur le site Géorisques : georisques.gouv.fr.
Votre conseiller RESEAU BROKERS® : Vu LAM
Agent commercial (Entreprise individuelle)
RSAC 852.861.954
RCP 7953190/F958E
- Type de bien : Local commercial
- Surface : 247 m²
- Localisation : France - ile-de-france - Seine et Marne
- Ville : Serris
- Code postal : 77700
- Disponible le 01/02/2026
- Annonce créée le 03/10/2025




