Location Local commercial 75015, Paris 15e Arrondissement france
1 540 € /
Mois
charges incluses
Descriptif du bien
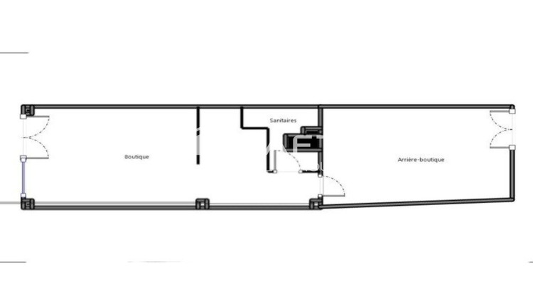
À louer : local commercial traversant avec réserve au sous-sol, idéal pour une activité tertiaire ou un commerce de proximité, au coeur du quartier LECOURBE
Superficie au RDC : 42 m²
Avec sanitaires et rideau métallique
Local traversant RUE / COUR intérieure
Mezzanine d'appoint
Cave saine de 10 m²
Destination : toutes activités, sauf restauration
idéal pour une activité tertiaire ou un commerce de proximité
Boutique située dans une rue fréquentée au coeur du quartier LECOURBE
Bail précaire de 1 à 3 ans
Loyer : 1500 ¤ HT / mois
Charges : 40 ¤ HT / mois
Taxes foncières : 875 ¤
Les informations sur les risques auxquels ce bien est exposé sont disponibles sur le site Géorisques : www.georisques.gouv.fr
Honoraires d'agence : 10 % HT du loyer triennal HT HC, à la charge du preneur
Contactez votre conseiller SAFTI : Lamiyae EL GHAOUTI, Tél. : 06 69 64 01 08, E-mail : lamiyae.elghaouti@safti.fr - EI - Agent commercial immatriculé au RSAC de Créteil sous le numéro 531188555.
Informations LOI ALUR :
Charges : 480 ¤ /mois.
Règlement des charges : provisionnel.
Honoraires locataire : 5 400 ¤ TTC.
Dépôt de garantie : 4 500 ¤.
Surface (arrondie) : 42 m². (gedeon_26118_32393237)
- Type de bien : Local commercial
- DPE : D - 151 à 230 kWh/².an
- GES : B - 6 à 10 kg eq CO2/².an
- Surface : 42 m²
- Localisation : France - ile-de-france - Paris
- Ville : Paris 15e Arrondissement
- Code postal : 75015
- Annonce créée le 08/01/2026





