Location Local commercial 34090, MONTPELLIER france
1 448 € /
Mois
charges incluses
1 / 6
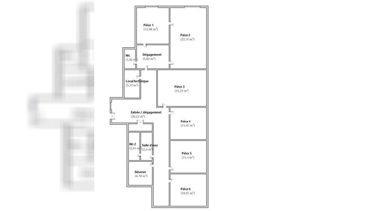
Descriptif du bien
Montpellier Nord, Père Soulas, Stade Philipidès, au rez-de-chaussée d'un immeuble d'habitations, l'agence FRANCES IMMOBILIER vous propose à la location ce local de bureaux d'une superficie de 133 m² et actuellement composé de 6 bureaux. Idéal professions médicales et paramédicales. Disponible immédiatement Honoraires à la charge du locataire 3084,48 € TTC dont Frais de visite / dossier / rédaction du bail 2 399,04 € TTC dont Honoraires d'état des lieux 685,44 € TTC - Dépôt de garantie 2 856 €





